Maison neuve à
Châteauroux (36000) Référence : TM2422542_5

Prix du projet : Maison avec Terrain

prix 168 600 €

  • 4 pièces
  • 3 chambres
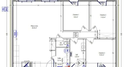
  • Surface maison 85 m2

VENTE d'une maison de 4 pièces (85 m²) à Châteauroux
EMPLACEMENT PRIVILÉGIÉ - MAISON 4 PIÈCES NEUVE
À vendre : Maisons Bruno Petit MJB Châteauroux vous présente cette maison de 4 pièces de plain-pied de 85 m², bénéficiant d'un emplacement privilégié dans Châteauroux (36000). Son intérieur propose trois chambres, une cuisine et une salle de bains.
Le terrain de la propriété est de 600 m².
Cette maison est neuve.
La maison est située dans un secteur convoité. Des écoles de tous niveaux se trouvent à moins de 10 minutes à pied, tout comme une structure d'accueil pour la petite enfance. Niveau transports, il y a la gare Châteauroux à proximité. L'autoroute A20 et la nationale N151 sont accessibles à moins de 5 km. On trouve une bibliothèque, des boulangeries, des commerces, deux supermarchés, un bureau de poste et trois boucheries-charcuteries à quelques minutes à peine.
Elle est proposée à l'achat pour 168 600 €.
N'hésitez pas à prendre contact avec notre agence (MANIERE Thomas : 06-15-51-71-54) pour tout renseignement sur la propriété, sur les démarches à suivre ou sur les modalités de vente. Faites de vos projets immobiliers une réalité avec Maisons Bruno Petit MJB Châteauroux.

Mentions légales

Terrain proposé par un partenaire foncier selon disponibilités et autorisation de publicité au prix de 38 000 €. Hors droit d'enregistrement et frais de notaire. Terrain + Maison proposés au prix de 168 600 € (Hors branchements et raccordements, papiers peints, peintures, revêtement de sol dans les chambres. Tarif modifiable sans préavis). Etiquette énergie : A. Différents modèles disponibles pour ce terrain. Assurances et garanties du constructeur (RC professionnelle, décennale, dommage ouvrage, garantie de remboursement de l'acompte, livraison à prix et délai convenu) : https://www.maisons-brunopetit.fr/mentions-legales/.

Contactez l'agence de Châteauroux

02 54 22 66 24

    * Champs obligatoires

    Vos informations sont traitées par HEXAOM et transmises à un conseiller commercial qui vous contactera afin de répondre à votre demande. Les plans et images présentés sur notre site sont la propriété d’HEXAOM et ne peuvent pas être reproduits sans son accord. Pour retrouver notre politique de protection des données personnelles et exercer vos droits conformément à la « loi informatique et liberté » cliquez-ici.