Maison neuve à
Châteauroux
(36000) Référence :
KG2471727_1
Prix du projet : Maison avec Terrain
prix 414 000 €
- 4 pièces
- 4 chambres
- Surface maison 130 m2
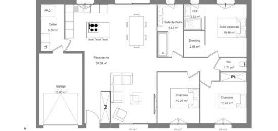
Projet de construction : maison de 4 pièces (130 m²) à Châteauroux
EMPLACEMENT PRIVILÉGIÉ - MAISON 4 PIÈCES NEUVE
En vente : bénéficiant d'un emplacement privilégié dans Châteauroux (36000), nous vous présentons cette maison de 4 pièces de 130 m².
Il s'agit d'une maison de 2 niveaux. Elle se divise en quatre chambres, une cuisine et deux salles de bains. La maison est neuve.
Le terrain de la propriété est de 24 000 m².
Ce bien est situé dans un secteur attractif. On trouve des établissements scolaires du primaire et du secondaire à moins de 10 minutes à pied, tout comme une crèche. Côté transports, il y a la gare Châteauroux à quelques pas du bien. L'autoroute A20 et la nationale N151 sont accessibles à moins de 5 km. On trouve une bibliothèque, des commerces, un bureau de poste, deux boucheries-charcuteries, des épiceries et une supérette à quelques minutes de la maison.
Son prix de vente est de 414 000 €.
Contactez Kevin GRIMAUD (*6-22-14-89-67) pour toute question sur la maison, sur les démarches à suivre ou sur les modalités de vente. Maisons Bruno Petit MJB Châteauroux vous accompagne à toutes les étapes de votre projet et dans tous vos projets immobiliers.
Mentions légales
Terrain proposé par un partenaire foncier selon disponibilités et autorisation de publicité au prix de 114 000 €. Hors droit d'enregistrement et frais de notaire. Terrain + Maison proposés au prix de 414 000 € (Hors branchements et raccordements, papiers peints, peintures, revêtement de sol dans les chambres. Tarif modifiable sans préavis). Etiquette énergie : A. Différents modèles disponibles pour ce terrain. Assurances et garanties du constructeur (RC professionnelle, décennale, dommage ouvrage, garantie de remboursement de l'acompte, livraison à prix et délai convenu) : https://www.maisons-brunopetit.fr/mentions-legales/.Agence Bruno Petit MJB de Châteauroux (36000)
- Téléphone :
- 02 54 22 66 24
- Adressse :
- 360 avenue de la Châtre
36000 Châteauroux, France