Maison neuve à
Chatuzange-le-Goubet
(26300) Référence :
AM2271690_2
Prix du projet : Maison avec Terrain
prix 283 200 €
- 4 pièces
- 3 chambres
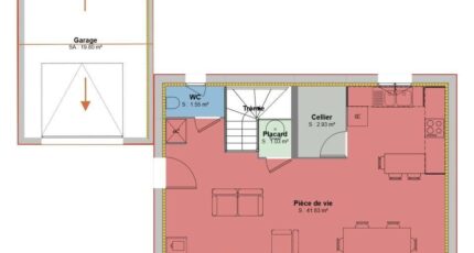
- Surface maison 93 m2
Maison à étage de 93 m2 avec chambres sur terrain de m2.
A découvrir sur la commune de CHATUZANGE LE GOUBET, projet de construction d'une maison à étage de 93 m habitables sur terrain plat de 450 m2
Cette maison moderne et fonctionnelle comprend au rez de chaussée une pièce de vie spacieuse et lumineuse avec cuisine ouverte, un WC indépendant et une espace de rangement. A l'étage, vous disposerez de 3 belles chambres, d'une salle de bains et d'un second WC.
Ce projet est idéal pour une famille à la recherche d'un cadre de vie serein, tout en restant proche des commodités et axe principaux.
Projet personnalisable selon vos envies et votre mode de vie.
Pour plus d'information ou une étude de votre projet, Amandine Maggioni, votre chargée de projet Maisons France Confort au 06 26 23 28 93
Mentions légales
Terrain proposé par un partenaire foncier selon disponibilités et autorisation de publicité au prix de 100 500 €. Hors droit d'enregistrement et frais de notaire. Maison proposée, avec un contrat de construction de maison individuelle, dans le cadre de la loi du 19/12/1990, au prix de 182 700 € (Hors branchements et raccordements, papiers peints, peintures, revêtement de sol dans les chambres, qui sont chiffrés dans les travaux qui restent à charge du client. Tarif modifiable sans préavis). Étiquette énergie : A. Différents modèles disponibles pour ce terrain. Assurances et garanties du constructeur comprises (RC professionnelle, décennale, dommage ouvrage).Agence Maisons France Confort de Montélimar (26200)
- Téléphone :
- 04 75 92 40 32
- Adressse :
- Bd du Président François Mitterrand
26200 Montélimar, France
