Maison neuve à
Chaumes-en-Brie
(77390) Référence :
FS2414469_2
Prix du projet : Maison avec Terrain
prix 330 000 €
- 5 pièces
- 3 chambres
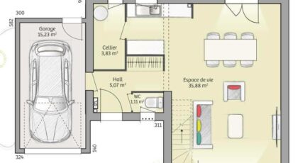
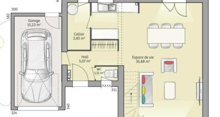
- Surface maison 90 m2
VENTE d'une maison T5 (90 m²) à Chaumes-en-Brie
EMPLACEMENT PRIVILÉGIÉ - MAISON 5 PIÈCES NEUVE
À vendre : à côté de la gare de Verneuil-l'Étang (Paris à 30 min avec le Transilien P), nous vous présentons cette maison de 5 pièces de 90 m² bénéficiant d'un emplacement privilégié dans Chaumes-en-Brie (77390).
C'est une maison de 2 niveaux. Son intérieur propose trois chambres, une cuisine et une salle de bains. La maison est neuve.
Le terrain de la propriété est de 622 m².
La maison se situe dans un quartier prisé. On trouve des écoles primaires à moins de 10 minutes à pied et, parmi lesquelles l'École Élémentaire de l'Abbaye. Niveau transports en commun, il y a les gares Verneuil-l'Étang, Mormant et Marles-en-Brie à moins de 10 minutes en voiture. Il y a une bibliothèque, deux boulangeries, un commerce, une boucherie-charcuterie, un bureau de poste et une épicerie à proximité.
Elle est proposée à l'achat pour 330 000 €.
Prenez contact avec notre agence (Félix SOUMARMON : 06-10-24-97-84) pour tout renseignement sur la maison ou sur les démarches à suivre.
Annonce proposée par un Agent Commercial Partenaire.
Mentions légales
Terrain proposé par un partenaire foncier selon disponibilités et autorisation de publicité au prix de 150 000 €. Hors droit d'enregistrement et frais de notaire. Terrain + Maison proposés au prix de 330 000 € (Hors branchements et raccordements, papiers peints, peintures, revêtement de sol dans les chambres. Tarif modifiable sans préavis). Etiquette énergie : A. Différents modèles disponibles pour ce terrain. Assurances et garanties du constructeur (RC professionnelle, décennale, dommage ouvrage, garantie de remboursement de l'acompte, livraison à prix et délai convenu) : https://www.maisons-france-confort.fr/mentions-legales/. HEXAOM Services est enregistré auprès de l'ORIAS en tant que Courtier en financement, Niveau 1, sous le numéro 14001345.Agence Maisons France Confort de Magny-le-Hongre (77700)
- Téléphone :
- 01 84 80 92 96
- Adressse :
- 11 rue de Courtalin
77700 Magny-le-Hongre, France
