Maison neuve à
Cheix-en-Retz (44640) Référence : VC2437246_2

Prix du projet : Maison avec Terrain

prix 336 000 €

  • 4 pièces
  • 3 chambres
  • Surface maison 107 m2

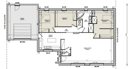
Cheix-en-Retz : maison de 4 pièces (107 m²) en vente
PROCHE DE NANTES - MAISON 4 PIÈCES NEUVE
Sur le littoral atlantique et à 19 km de Nantes, nous sommes heureux de vous présenter en vente à Cheix-en-Retz (44640), cette maison de 4 pièces de plain-pied de 107 m². Elle propose trois chambres, une cuisine et une salle de bains.
Le terrain de la propriété est de 560 m².
Cette maison est neuve.
L'École Primaire Publique Jean de la Fontaine est implantée à moins de 10 minutes . Niveau transports, on trouve quatre gares à moins de 10 minutes en voiture.
Elle est à vendre pour la somme de 336 000 €.
Prenez contact avec Vincent COUCHAUX (tél : 06-74-86-07-98) pour toute information sur la maison, sur les démarches à suivre ou sur les modalités de vente.

Mentions légales

Terrain proposé par un partenaire foncier selon disponibilités et autorisation de publicité au prix de 75 700 €. Hors droit d'enregistrement et frais de notaire. Terrain + Maison proposés au prix de 336 000 € (Hors branchements et raccordements, papiers peints, peintures, revêtement de sol dans les chambres. Tarif modifiable sans préavis). Etiquette énergie : A. Différents modèles disponibles pour ce terrain. Assurances et garanties du constructeur (RC professionnelle, décennale, dommage ouvrage, garantie de remboursement de l'acompte, livraison à prix et délai convenu) : https://www.tradilignes.fr/mentions-legales/.

Contactez l'agence de Pornic

02 40 82 59 91

    * Champs obligatoires

    Vos informations sont traitées par HEXAOM et transmises à un conseiller commercial qui vous contactera afin de répondre à votre demande. Les plans et images présentés sur notre site sont la propriété d’HEXAOM et ne peuvent pas être reproduits sans son accord. Pour retrouver notre politique de protection des données personnelles et exercer vos droits conformément à la « loi informatique et liberté » cliquez-ici.