Maison neuve à
Chelles
(77500) Référence :
IL2317822_2
Prix du projet : Maison avec Terrain
prix 428 100 €
- 5 pièces
- 3 chambres
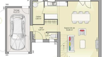
- Surface maison 90 m2
VENTE d'une maison de 5 pièces (90 m²) à Chelles
MAISON 5 PIÈCES NEUVE
À quelques minutes de la station Chelles-Gournay du RER E (20 min de Paris), nous sommes ravis de vous présenter cette maison de 5 pièces de 90 m² à Chelles (77500).
Cette maison possède 2 niveaux. Elle se divise en trois chambres, une cuisine et une salle de bains. Cette maison est neuve.
Le terrain du bien est de 481 m².
Il y a plusieurs établissements scolaires (maternelle, élémentaire, primaire et lycée) à moins de 10 minutes à pied, tout comme quatre structures d'accueil pour les enfants en bas âge. Côté transports, on trouve trois lignes de RER (E, A et B) ainsi que 29 gares à moins de 10 minutes en voiture. Il y a deux tennis, une bibliothèque, des commerces, des boulangeries, un supermarché, deux supérettes et quatre épiceries dans les environs.
Elle est proposée à l'achat pour 428 100 €.
Prenez contact avec ROUSSEL TOUATI Thomas (06-67-03-68-69) pour plus d'informations sur cette maison et sur les modalités de vente. Maisons France Confort Magny-le-Hongre est là pour vous accompagner dans toutes vos démarches.
Annonce proposée par un Agent Commercial Partenaire.
Mentions légales
Terrain proposé par un partenaire foncier selon disponibilités et autorisation de publicité au prix de 250 000 €. Hors droit d'enregistrement et frais de notaire. Maison proposée, avec un contrat de construction de maison individuelle, dans le cadre de la loi du 19/12/1990, au prix de 178 100 € (Hors branchements et raccordements, papiers peints, peintures, revêtement de sol dans les chambres, qui sont chiffrés dans les travaux qui restent à charge du client. Tarif modifiable sans préavis). Étiquette énergie : A. Différents modèles disponibles pour ce terrain. Assurances et garanties du constructeur comprises (RC professionnelle, décennale, dommage ouvrage).Agence Maisons France Confort de Magny-le-Hongre (77700)
- Téléphone :
- 01 84 80 92 96
- Adressse :
- 11 rue de Courtalin
77700 Magny-le-Hongre, France
