Maison neuve à
Chelles
(77500) Référence :
TM2442691_6
Prix du projet : Maison avec Terrain
prix 500 000 €
- 4 pièces
- 3 chambres
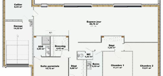
- Surface maison 94 m2
Chelles : maison T4 (94 m²) en vente
MAISON 4 PIÈCES NEUVE
À vendre : au pied de la station Chelles-Gournay du RER E (20 min de Paris), découvrez cette maison de 4 pièces de plain-pied de 94 m² à Chelles (77500).
Son intérieur offre trois chambres, une cuisine et deux salles de bains. La maison est neuve.
Le terrain du bien est de 400 m².
Plusieurs établissements scolaires (maternelle, élémentaire, primaire et lycée) sont implantés à moins de 10 minutes à pied, tout comme quatre crèches. Côté transports, il y a le RER E, A et B ainsi que 29 gares à moins de 10 minutes en voiture. On trouve deux tennis, une bibliothèque, des commerces, des boulangeries, un supermarché, quatre épiceries et deux supérettes à quelques minutes de la maison.
Elle est à vendre pour la somme de 500 000 €.
Contactez Teddy MELES (tél : 06-17-56-83-36) pour plus de renseignements sur cette maison. Maisons France Confort Magny-le-Hongre vous accompagne dans tous vos projets immobiliers et à toutes les étapes de votre projet.
Annonce proposée par un Agent Commercial Partenaire.
Mentions légales
Terrain proposé par un partenaire foncier selon disponibilités et autorisation de publicité au prix de 250 000 €. Hors droit d'enregistrement et frais de notaire. Terrain + Maison proposés au prix de 500 000 € (Hors branchements et raccordements, papiers peints, peintures, revêtement de sol dans les chambres. Tarif modifiable sans préavis). Etiquette énergie : A. Différents modèles disponibles pour ce terrain. Assurances et garanties du constructeur (RC professionnelle, décennale, dommage ouvrage, garantie de remboursement de l'acompte, livraison à prix et délai convenu) : https://www.maisons-france-confort.fr/mentions-legales/. HEXAOM Services est enregistré auprès de l'ORIAS en tant que Courtier en financement, Niveau 1, sous le numéro 14001345.Agence Maisons France Confort de Magny-le-Hongre (77700)
- Téléphone :
- 01 84 80 92 96
- Adressse :
- 11 rue de Courtalin
77700 Magny-le-Hongre, France
