Maison neuve à
Chessy
(77700) Référence :
HN2382736_1
Prix du projet : Maison avec Terrain
prix 420 000 €
- 5 pièces
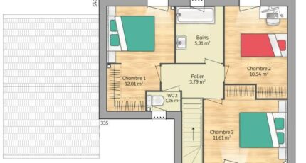
- 3 chambres
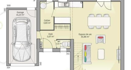
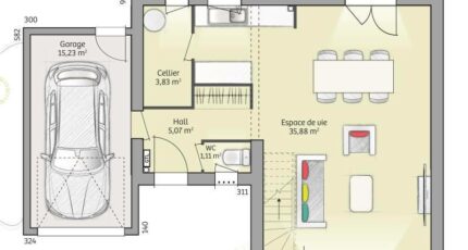
- Surface maison 90 m2
VENTE d'une maison de 5 pièces (90 m²) à Chessy
IDÉALEMENT SITUÉE - MAISON 5 PIÈCES NEUVE
À côté du RER A (station Val d'Europe, 30 min de Paris), notre agence Maisons France Confort Magny-le-Hongre est ravie de vous présenter cette maison de 5 pièces de 90 m² à vendre idéalement située dans Chessy (77700).
Il s'agit d'une maison de 2 niveaux. Elle propose trois chambres, une cuisine et une salle de bains. La maison est neuve.
Le terrain de la propriété est de 420 m².
Cette maison est située dans un secteur attractif. On trouve l'École Primaire Cornelius et l'École Primaire Gaius à moins de 10 minutes à pied et une crèche. Niveau transports en commun, il y a la ligne de RER A (Chessy-Marne-La-Vallée) ainsi que sept gares à moins de 10 minutes en voiture. Il y a deux tennis, des commerces, une boulangerie, une boucherie-charcuterie et deux épiceries à quelques minutes à peine.
Elle est à vendre pour la somme de 420 000 €.
Prenez contact avec Hugo NGUYEN (tél : 06-60-97-69-03) pour toute information sur la maison, sur les modalités de vente ou sur les démarches à suivre. Donnez vie à vos projets immobiliers avec Maisons France Confort Magny-le-Hongre.
Annonce proposée par un Agent Commercial Partenaire.
Mentions légales
Terrain proposé par un partenaire foncier selon disponibilités et autorisation de publicité au prix de 220 000 €. Hors droit d'enregistrement et frais de notaire. Terrain + Maison proposés au prix de 420 000 € (Hors branchements et raccordements, papiers peints, peintures, revêtement de sol dans les chambres. Tarif modifiable sans préavis). Etiquette énergie : A. Différents modèles disponibles pour ce terrain. Assurances et garanties du constructeur (RC professionnelle, décennale, dommage ouvrage, garantie de remboursement de l'acompte, livraison à prix et délai convenu) : https://www.maisons-france-confort.fr/mentions-legales/. HEXAOM Services est enregistré auprès de l'ORIAS en tant que Courtier en financement, Niveau 1, sous le numéro 14001345.Agence Maisons France Confort de Magny-le-Hongre (77700)
- Téléphone :
- 01 84 80 92 96
- Adressse :
- 11 rue de Courtalin
77700 Magny-le-Hongre, France
