Maison neuve à
Chevroux (01190) Référence : SG2604_3

Prix du projet : Maison avec Terrain

prix 209 500 €

  • 4 pièces
  • 3 chambres
  • Surface maison 96 m2

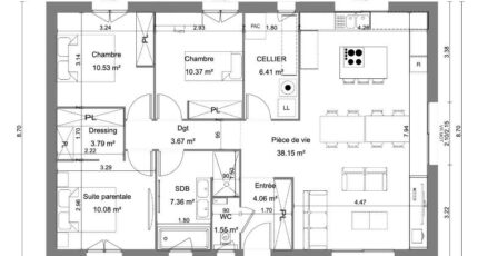
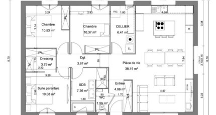
Maison de 4 pièces (96 m²) en vente à Chevroux
MAISON 4 PIÈCES NEUVE - PROCHE DE BOURG-EN-BRESSE
En vente : à deux pas de Bourg-en-Bresse, à Chevroux (01190), notre agence Maisons France Confort Bourg-en-Bresse est ravie de vous proposer cette maison de 4 pièces de plain-pied de 96 m² et de 595 m² de terrain. Son intérieur inclut trois chambres, une cuisine et une salle de bains.
Cette maison est neuve.
Une école primaire est implantée dans le quartier. Niveau transports, il y a les gares Senozan et Fleurville-Pont-de-Vaux à moins de 10 minutes en voiture. Les autoroutes A40 et A6 sont accessibles à moins de 9 km. On trouve une boulangerie à proximité de la maison.
Elle est à vendre pour la somme de 209 500 €.
Contactez Sébastien GABRILLARGUES (06-81-77-73-67) pour obtenir de plus amples informations sur cette maison, sur les démarches à suivre ou sur les modalités de vente.

Annonce proposée par un Agent Commercial Partenaire.

Mentions légales

Terrain proposé par un partenaire foncier selon disponibilités et autorisation de publicité au prix de 44 000 €. Hors droit d'enregistrement et frais de notaire. Terrain + Maison proposés au prix de 209 500 € (Hors branchements et raccordements, papiers peints, peintures, revêtement de sol dans les chambres. Tarif modifiable sans préavis). Etiquette énergie : A. Différents modèles disponibles pour ce terrain. Assurances et garanties du constructeur (RC professionnelle, décennale, dommage ouvrage, garantie de remboursement de l'acompte, livraison à prix et délai convenu) : https://www.maisons-france-confort.fr/mentions-legales/. HEXAOM Services est enregistré auprès de l'ORIAS en tant que Courtier en financement, Niveau 1, sous le numéro 14001345.

Contactez l'agence de Bourg-en-Bresse

04 74 14 04 47

    * Champs obligatoires

    Vos informations sont traitées par HEXAOM et transmises à un conseiller commercial qui vous contactera afin de répondre à votre demande. Les plans et images présentés sur notre site sont la propriété d’HEXAOM et ne peuvent pas être reproduits sans son accord. Pour retrouver notre politique de protection des données personnelles et exercer vos droits conformément à la « loi informatique et liberté » cliquez-ici.