Maison neuve à
Chezelles
(36500) Référence :
KG2471103_2
Prix du projet : Maison avec Terrain
prix 146 500 €
- 4 pièces
- 3 chambres
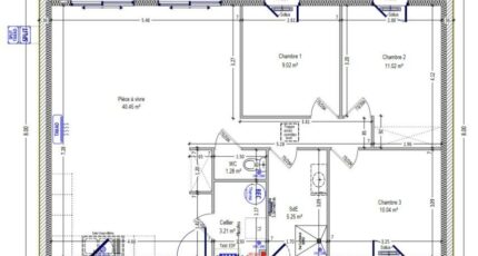
- Surface maison 85 m2
Chezelles : Projet de construction maison F4 (85 m²)
EMPLACEMENT PRIVILÉGIÉ - MAISON 4 PIÈCES NEUVE
À 14 km de Châteauroux, en vente bénéficiant d'un emplacement privilégié dans Chezelles (36500), Maisons Bruno Petit MJB Châteauroux vous propose cette maison de 4 pièces de plain-pied de 85 m².
Son intérieur propose trois chambres, une cuisine et une salle de bains. La maison est neuve.
Le terrain du bien est de 1 048 m².
La maison se trouve dans un quartier attractif. L'École Maternelle Jean Moulin est implantée à moins de 10 minutes à pied. On trouve un accès à l'autoroute A20 à 8 km. On trouve un tennis et une épicerie à quelques minutes.
Elle est à vendre pour la somme de 146 500 €.
N'hésitez pas à prendre contact avec Kevin GRIMAUD (*6-22-14-89-67) pour toute question sur la maison et sur les modalités de vente. Maisons Bruno Petit MJB Châteauroux est là pour vous accompagner à toutes les étapes de votre projet.
Mentions légales
Terrain proposé par un partenaire foncier selon disponibilités et autorisation de publicité au prix de 15 270 €. Hors droit d'enregistrement et frais de notaire. Terrain + Maison proposés au prix de 146 500 € (Hors branchements et raccordements, papiers peints, peintures, revêtement de sol dans les chambres. Tarif modifiable sans préavis). Etiquette énergie : A. Différents modèles disponibles pour ce terrain. Assurances et garanties du constructeur (RC professionnelle, décennale, dommage ouvrage, garantie de remboursement de l'acompte, livraison à prix et délai convenu) : https://www.maisons-brunopetit.fr/mentions-legales/.Agence Bruno Petit MJB de Châteauroux (36000)
- Téléphone :
- 02 54 22 66 24
- Adressse :
- 360 avenue de la Châtre
36000 Châteauroux, France