Maison neuve à
Ciron (36300) Référence : KG2430947_10

Prix du projet : Maison avec Terrain

prix 297 353 €

  • 4 pièces
  • 3 chambres
  • Surface maison 110 m2

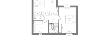
Ciron : Projet de construction maison de 4 pièces (110 m²)
IDÉALEMENT SITUÉE - MAISON 4 PIÈCES NEUVE
En vente : nous vous présentons, idéalement située dans Ciron (36300), cette maison de 4 pièces de 110 m² et de 817 m² de terrain. Son intérieur se divise en trois chambres, une cuisine et deux salles de bains.
Cette maison possède 2 niveaux. Elle est neuve.
Cette maison se trouve dans un secteur prisé. Une école élémentaire y est implantée. L'autoroute A20 est accessible à 20 km. Il y a un tennis et une boulangerie à proximité de la maison.
Elle est proposée à l'achat pour 297 353 €.
Contactez notre agence (GRIMAUD Kevin : *6-22-14-89-67) pour toute information sur la maison, sur les modalités de vente ou sur les démarches à suivre. Concrétisez vos projets immobiliers avec Maisons Bruno Petit MJB Châteauroux.

Mentions légales

Terrain proposé par un partenaire foncier selon disponibilités et autorisation de publicité au prix de 7 353 €. Hors droit d'enregistrement et frais de notaire. Terrain + Maison proposés au prix de 297 353 € (Hors branchements et raccordements, papiers peints, peintures, revêtement de sol dans les chambres. Tarif modifiable sans préavis). Etiquette énergie : A. Différents modèles disponibles pour ce terrain. Assurances et garanties du constructeur (RC professionnelle, décennale, dommage ouvrage, garantie de remboursement de l'acompte, livraison à prix et délai convenu) : https://www.maisons-brunopetit.fr/mentions-legales/.

Contactez l'agence de Châteauroux

02 54 22 66 24

    * Champs obligatoires

    Vos informations sont traitées par HEXAOM et transmises à un conseiller commercial qui vous contactera afin de répondre à votre demande. Les plans et images présentés sur notre site sont la propriété d’HEXAOM et ne peuvent pas être reproduits sans son accord. Pour retrouver notre politique de protection des données personnelles et exercer vos droits conformément à la « loi informatique et liberté » cliquez-ici.