Maison neuve à
Claye-Souilly
(77410) Référence :
CY2469350_1
Prix du projet : Maison avec Terrain
prix 379 000 €
- 5 pièces
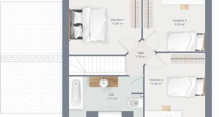
- 3 chambres
- Surface maison 80 m2
VENTE d'une maison de 5 pièces (80 m²) à Claye-Souilly
IDÉALEMENT SITUÉE - MAISON 5 PIÈCES NEUVE
À vendre : à côté du Transilien K (gare de Mitry-Claye, 25 min de Paris), venez découvrir, idéalement située dans Claye-Souilly (77410), cette maison de 5 pièces de 80 m² et de 372 m² de terrain.
C'est une maison de 2 niveaux. Elle compte trois chambres, une cuisine et une salle de bains. Cette maison est neuve.
La maison est située dans un quartier recherché. Plusieurs établissements scolaires (maternelle, élémentaire et collège) sont implantés à moins de 10 minutes à pied. Niveau transports en commun, on trouve la ligne de RER B (Mitry-Claye) ainsi que huit gares à moins de 10 minutes en voiture. Il y a un bassin de natation, un tennis, des commerces, deux supérettes, deux boucheries-charcuteries, une épicerie et un bureau de poste dans les environs. Enfin, le marché Place de Gaulle anime les environs.
Elle est à vendre pour la somme de 379 000 €.
N'hésitez pas à prendre contact avec notre agence (YAHIAOUI Cedric : 06-66-57-00-63) pour obtenir de plus amples renseignements sur la maison. Maisons France Confort Mareuil-lès-Meaux est là pour vous accompagner dans tous vos projets immobiliers.
Annonce proposée par un Agent Commercial Partenaire.
Mentions légales
Terrain proposé par un partenaire foncier selon disponibilités et autorisation de publicité au prix de 189 000 €. Hors droit d'enregistrement et frais de notaire. Terrain + Maison proposés au prix de 379 000 € (Hors branchements et raccordements, papiers peints, peintures, revêtement de sol dans les chambres. Tarif modifiable sans préavis). Etiquette énergie : A. Différents modèles disponibles pour ce terrain. Assurances et garanties du constructeur (RC professionnelle, décennale, dommage ouvrage, garantie de remboursement de l'acompte, livraison à prix et délai convenu) : https://www.maisons-france-confort.fr/mentions-legales/. HEXAOM Services est enregistré auprès de l'ORIAS en tant que Courtier en financement, Niveau 1, sous le numéro 14001345.Agence Maisons France Confort de Mareuil-lès-Meaux (77100)
- Téléphone :
- 01 60 09 28 30
- Adressse :
- Domexpo Est Village La Hayette
77100 Mareuil-lès-Meaux, France
