Maison neuve à
Cléder
(29233) Référence :
AC2314459_3
Prix du projet : Maison avec Terrain
prix 348 300 €
- 6 pièces
- 5 chambres
- Surface maison 118 m2
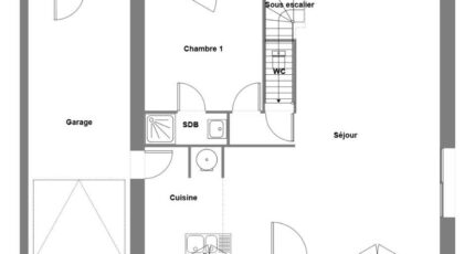
VENTE : maison F6 (118 m²) à Cléder
Cette belle maison traditionnelle aux lignes contemporaines offre 118m² habitable .
Au rez-de-chaussée, elle dispose d'une belle pièce de vie de 37m² offrant un maximum de lumière, d'une suite parentale avec sa salle d'eau, d'un wc et d'un garage.
A l'étage on retrouve ' chambres, une salle de bains, et un WC. L'orientation de cette maison vous permettra de bénéficier d'un maximum de lumière et de chaleur naturelle pour davantage d'économies et de douceur de vivre.
Elle est à vendre pour la somme de 348 300 €.
Contactez Aurélie CAGNARD (02-98-03-90-90) pour toute question sur la propriété, sur les démarches à suivre et sur les modalités de vente. Concrétisez vos projets immobiliers avec Maisons de l'Avenir Guipavas.
Mentions légales
Maisons de l’Avenir, constructeur de maisons individuelles, propose en collaboration avec ses partenaires fonciers, une sélection de terrains constructibles, selon disponibilité, pour la construction de maisons neuves définies par le constructeur, avec un contrat de construction de maison individuelle, dans le cadre de la loi du 19/12/1990. Prix net, hors frais notariés, d'enregistrement et de publicité foncière
Terrain proposé au prix de : 56 000 €
Maison proposée au prix de : 292 300 €
Etiquette énergie : A. Assurances et garanties du constructeur (RC professionnelle, décennale, dommage ouvrage, Garantie de livraison à prix et délai convenu). https://www.maisonsdelavenir.com/mentions-legales/
Agence Maisons de l'Avenir de Guipavas (29490)
- Téléphone :
- 02 98 03 90 90
- Adressse :
- 10 Rue de Poul Ar Feunteun
29490 Guipavas, France
