Maison neuve à
Cléder
(29233) Référence :
AC2315296_2
Prix du projet : Maison avec Terrain
prix 339 400 €
- 4 pièces
- 3 chambres
- Surface maison 114 m2
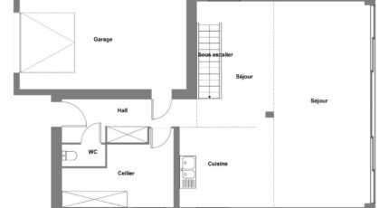
Maison de 4 pièces (114 m²) à vendre à Cléder
Cette belle maison traditionnelle aux lignes contemporaines offre 114m² habitable .
Au rez-de-chaussée, elle dispose d'une belle pièce de vie offrant un maximum de lumière, d'un wc, un cellier et d'un garage.
A l'étage on retrouve 3 chambres, 2 salles d'eau, un WC un bureau et un grand vide sur séjour.
L'orientation de cette maison vous permettra de bénéficier d'un maximum de lumière et de chaleur naturelle pour davantage d'économies et de douceur de vivre.
Il est proposé à l'achat pour 339 400 €.
Contactez notre agence (Aurélie CAGNARD : 02-98-03-90-90) pour toute information sur la maison ou sur les modalités de vente. Faites de vos projets immobiliers une réalité avec Maisons de l'Avenir Guipavas.
Mentions légales
Maisons de l’Avenir, constructeur de maisons individuelles, propose en collaboration avec ses partenaires fonciers, une sélection de terrains constructibles, selon disponibilité, pour la construction de maisons neuves définies par le constructeur, avec un contrat de construction de maison individuelle, dans le cadre de la loi du 19/12/1990. Prix net, hors frais notariés, d'enregistrement et de publicité foncière
Terrain proposé au prix de : 56 500 €
Maison proposée au prix de : 282 900 €
Etiquette énergie : A. Assurances et garanties du constructeur (RC professionnelle, décennale, dommage ouvrage, Garantie de livraison à prix et délai convenu). https://www.maisonsdelavenir.com/mentions-legales/
Agence Maisons de l'Avenir de Guipavas (29490)
- Téléphone :
- 02 98 03 90 90
- Adressse :
- 10 Rue de Poul Ar Feunteun
29490 Guipavas, France
