Maison neuve à
Clérac
(17270) Référence :
DB2386339_1
Prix du projet : Maison avec Terrain
prix 195 000 €
- 5 pièces
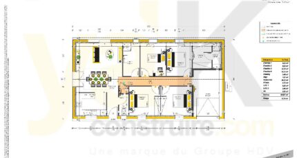
- 4 chambres
- Surface maison 115 m2
Maison de 4 pièces
Cette maison 4 pièces de 115 m² offre trois chambres, une cuisine, un garage et deux salles de bains.
Découvrez ce terrain de 1030 m² exposé plein ouest et donnant sur un champ. Il se trouve dans un secteur prisé proches des commodités
Ce terrain est proposé à l'achat pour 30 000 €. Contactez notre agence (BOUYER Dylan : O6-78-O8-19-73) pour obtenir de plus amples informations sur le terrain. Alpha Constructions Jonzac est là pour vous accompagner dans toutes vos démarches.
Mentions légales
Terrain proposé par un partenaire foncier selon disponibilité dans le cadre d’un projet de construction avec Alpha Constructions. Les descriptions, photographies, surfaces et prix illustrant l’annonce sont fournies à titre indicatif et ne sont pas contractuels. Non soumis au DPE. Différents modèles disponibles.Agence Alpha Constructions de Jonzac (17500)
- Téléphone :
- 05 46 86 66 84
- Adressse :
- 24 Place du Champ de Foire
17500 Jonzac, France