Maison neuve à
Clérac
(17270) Référence :
SP2444881_3
Prix du projet : Maison avec Terrain
prix 205 500 €
- 4 pièces
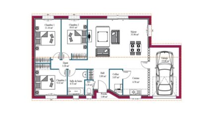
- 3 chambres
- Surface maison 85 m2
Prenez contact avec notre agence (Sonia PURY : O6-95-32-58-15) pour toute question sur la maison, sur les démarches à suivre ou sur les modalités de vente.
À vendre à Clérac (17270) : maison neuve 4 pièces de 85 m² et garage sur un terrain de 674 m².
Elle offre trois chambres, une pièce de vie et une salle de bains et garage.
Proche École Primaire Clérac, tennis, boulangerie et épicerie.
Nationale N10 à 7 km.
Cette maison de 4 pièces est proposée à 205500 €.(prêt à décorer, hors frais de notaire)
Maisons de la Côte Atlantique Saint-André-de-Cubzac est là pour vous accompagner à toutes les étapes de votre projet.
Mentions légales
Idée de réalisation en modèle prêt à décorer sur l'un de nos terrains partenaires, sous réserve de disponibilités. Voir détails en agence.Agence Maisons de la Côte Atlantique de Saint-André-de-Cubzac (33240)
- Téléphone :
- 05 57 43 10 38
- Adressse :
- 16, Place du Champ de Foire
33240 Saint-André-de-Cubzac, France
