Maison neuve à 
  Clermont-l'Hérault
 (34800)  Référence :
 MM2323188_6 
Prix du projet : Maison avec Terrain
prix 385 000 €
- 6 pièces
- 4 chambres
- Surface maison 110 m2
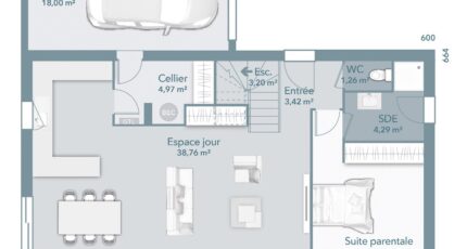
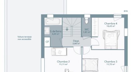
VENTE : maison de 6 pièces (110 m²) à Clermont-l'Hérault
IDÉALEMENT SITUÉE - MAISON 6 PIÈCES NEUVE
En vente : localisée à 37 km de la mer Méditerranée, notre agence Maisons France Confort Clermont-l'Hérault est ravie de vous proposer cette maison de 6 pièces de 110 m² idéalement située dans Clermont-l'Hérault (34800). Son intérieur se divise en quatre chambres, une cuisine et deux salles de bains.
Le terrain de cette maison est de 480 m².
Cette maison compte 2 niveaux. Elle est neuve.
La maison est située dans un secteur attractif. Il y a tous les types d'écoles (maternelle, élémentaire et secondaire) à moins de 10 minutes à pied, tout comme une structure d'accueil pour les tout-petits. Les autoroutes A75 et A750 sont accessibles à moins de 5 km. On trouve un bassin de natation, un tennis, des boulangeries, des commerces, deux supermarchés, une boucherie-charcuterie et trois épiceries à proximité.
Elle est à vendre pour la somme de 385 000 €.
Prenez contact avec Mickaël MARTINEZ (06-16-87-37-15) pour obtenir de plus amples informations sur la maison ou sur les démarches à suivre. Maisons France Confort Clermont-l'Hérault est là pour vous accompagner à toutes les étapes de votre projet.
Mentions légales
Terrain proposé par un partenaire foncier selon disponibilités et autorisation de publicité au prix de 114 900 €. Hors droit d'enregistrement et frais de notaire. Maison proposée, avec un contrat de construction de maison individuelle, dans le cadre de la loi du 19/12/1990, au prix de 270 100 € (Hors branchements et raccordements, papiers peints, peintures, revêtement de sol dans les chambres, qui sont chiffrés dans les travaux qui restent à charge du client. Tarif modifiable sans préavis). Étiquette énergie : A. Différents modèles disponibles pour ce terrain. Assurances et garanties du constructeur comprises (RC professionnelle, décennale, dommage ouvrage).Agence Maisons France Confort de Clermont-l'Hérault (34800)
- Téléphone :
- 04 67 96 00 74
- Adressse :
-  7 rue du Chardonnay
 34800 Clermont-l'Hérault, France
 
  
  
  
  
  
  
  
  
  
  
  
 