Maison neuve à
Clohars-Carnoët
(29360) Référence :
CC2477205_3
Prix du projet : Maison avec Terrain
prix 334 500 €
- 5 pièces
- 4 chambres
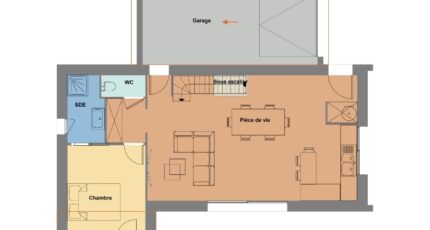
- Surface maison 91 m2
Maison de 5 pièces (91 m²) à vendre à Clohars-Carnoët
EMPLACEMENT PRIVILÉGIÉ - MAISON 5 PIÈCES NEUVE
À vendre : sur le littoral atlantique et à deux pas de Lorient, bénéficiant d'un emplacement d'exception dans Clohars-Carnoët (29360), nous vous proposons cette maison de 5 pièces de 91 m² et de 380 m² de terrain. Elle dispose de quatre chambres, d'une cuisine et de deux salles de bains.
C'est une maison de 2 niveaux. Elle est neuve.
Cette maison se situe dans un secteur recherché. Il y a l'École Primaire Privée Notre-Dame de la Garde, l'École Maternelle Publique Pierre Tal Coat et l'École Élémentaire Publique Benoîte Groult à moins de 10 minutes à pied. Côté transports en commun, on trouve la gare Quimperlé à moins de 10 minutes en voiture. La nationale N165 est accessible à 8 km. Il y a trois commerces, une boucherie-charcuterie et un bureau de poste dans les environs.
Son prix de vente est de 334 500 €.
Contactez notre agence COLLOCH Christophe pour tout renseignement sur la maison, sur les modalités de vente ou sur les démarches à suivre. Maisons de l'Avenir Lorient est là pour vous accompagner à toutes les étapes de l'achat.
Mentions légales
Terrain proposé par un partenaire foncier selon disponibilités et autorisation de publicité au prix de 95 000 €. Hors droit d'enregistrement et frais de notaire. Terrain + Maison proposés au prix de 334 500 € (Hors branchements et raccordements, papiers peints, peintures, revêtement de sol dans les chambres. Tarif modifiable sans préavis). Etiquette énergie : A. Différents modèles disponibles pour ce terrain. Assurances et garanties du constructeur (RC professionnelle, décennale, dommage ouvrage, garantie de remboursement de l'acompte, livraison à prix et délai convenu) : https://www.maisonsdelavenir.com/mentions-legales/.Agence Maisons de l'Avenir de Lorient (56100)
- Téléphone :
- 02 97 21 63 96
- Adressse :
- 158 rue du Colonel Muller
56100 Lorient, France
