Maison neuve à
Cluis (36340) Référence : KG2470981_6

Prix du projet : Maison avec Terrain

prix 214 190 €

  • 4 pièces
  • 3 chambres
  • Surface maison 110 m2

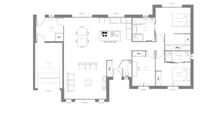
Cluis : Projet de construction maison T4 (110 m²) EMPLACEMENT PRIVILÉGIÉ - MAISON 4 PIÈCES NEUVE
À deux pas de Châteauroux, à vendre bénéficiant d'un emplacement d'exception dans Cluis (36340), laissez vous charmer par cette maison de 4 pièces de plain-pied de 110 m² et de 1 209 m² de terrain. Elle comporte trois chambres, une cuisine et deux salles de bains.
Cette maison est neuve.
Ce bien est situé dans un secteur attractif. Une école primaire y est implantée. Il y a un accès à l'autoroute A20 à 18 km. Il y a un commerce, une épicerie, une boucherie-charcuterie et un bureau de poste dans les environs.
Il est proposé à l'achat pour 214 190 €.
Contactez Kevin GRIMAUD (tél : *6-22-14-89-67) pour tout renseignement sur la maison ou sur les modalités de vente.

Mentions légales

Terrain proposé par un partenaire foncier selon disponibilités et autorisation de publicité au prix de 12 090 €. Hors droit d'enregistrement et frais de notaire. Terrain + Maison proposés au prix de 214 190 € (Hors branchements et raccordements, papiers peints, peintures, revêtement de sol dans les chambres. Tarif modifiable sans préavis). Etiquette énergie : A. Différents modèles disponibles pour ce terrain. Assurances et garanties du constructeur (RC professionnelle, décennale, dommage ouvrage, garantie de remboursement de l'acompte, livraison à prix et délai convenu) : https://www.maisons-brunopetit.fr/mentions-legales/.

Contactez l'agence de Châteauroux

02 54 22 66 24

    * Champs obligatoires

    Vos informations sont traitées par HEXAOM et transmises à un conseiller commercial qui vous contactera afin de répondre à votre demande. Les plans et images présentés sur notre site sont la propriété d’HEXAOM et ne peuvent pas être reproduits sans son accord. Pour retrouver notre politique de protection des données personnelles et exercer vos droits conformément à la « loi informatique et liberté » cliquez-ici.