Maison neuve à
Coëtmieux (22400) Référence : DD2449461_1

Prix du projet : Maison avec Terrain

prix 291 100 €

  • 5 pièces
  • 4 chambres
  • Surface maison 84 m2

VENTE d'une maison T5 (84 m²) à Coëtmieux
IDÉALEMENT SITUÉE - MAISON 5 PIÈCES NEUVE
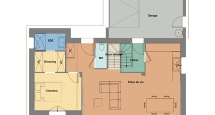
En vente, à 13 km de Saint-Brieuc, ayez le coup de coeur pour cette maison de 5 pièces de 84 m² idéalement située dans Coëtmieux (22400). Elle compte quatre chambres, une cuisine et deux salles de bains.
Le terrain de la maison s'étend sur 1 070 m².
Il s'agit d'une maison de 2 niveaux. Elle est neuve.
La propriété se situe dans un secteur convoité. L'École Primaire Privée Sainte Jeanne d'Arc et l'École Primaire Publique de Coetmieux se trouvent à moins de 10 minutes à pied. Niveau transports, il y a deux gares (Yffiniac et Lamballe) à moins de 10 minutes en voiture. On trouve un tennis, une bibliothèque et un commerce à quelques minutes à peine.
Elle est proposée à l'achat pour 291 100 €.
Prenez contact avec notre agence Maisons de l'Avenir Saint Brieuc pour toute question sur la maison ou sur les modalités de vente.

Mentions légales

Terrain proposé par un partenaire foncier selon disponibilités et autorisation de publicité au prix de 80 000 €. Hors droit d'enregistrement et frais de notaire. Terrain + Maison proposés au prix de 291 100 € (Hors branchements et raccordements, papiers peints, peintures, revêtement de sol dans les chambres. Tarif modifiable sans préavis). Etiquette énergie : A. Différents modèles disponibles pour ce terrain. Assurances et garanties du constructeur (RC professionnelle, décennale, dommage ouvrage, garantie de remboursement de l'acompte, livraison à prix et délai convenu) : https://www.maisonsdelavenir.com/mentions-legales/.

Contactez l'agence de Saint-Brieuc

02 96 78 52 58

    * Champs obligatoires

    Vos informations sont traitées par HEXAOM et transmises à un conseiller commercial qui vous contactera afin de répondre à votre demande. Les plans et images présentés sur notre site sont la propriété d’HEXAOM et ne peuvent pas être reproduits sans son accord. Pour retrouver notre politique de protection des données personnelles et exercer vos droits conformément à la « loi informatique et liberté » cliquez-ici.