Maison neuve à
Coimères
(33210) Référence :
HD2496697_2
Prix du projet : Maison avec Terrain
prix 329 180 €
- 5 pièces
- 3 chambres
- Surface maison 107 m2
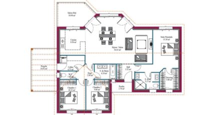
MAISON NEUVE DE 107 M² AVEC 5 PIÈCES DANS UN EMPLACEMENT PRIVILÉGIÉ À COIMÈRES
PRÉSENTATION DU BIEN
Située à Coimères, cette maison neuve à construire offre une surface habitable de 107 m² sur un terrain de 1230 m² dans un emplacement privilégié.
Cette maison se compose de trois chambres, une cuisine et une salle de bains avec baignoire, pour un espace de vie agréable et adapté à vos besoins.
La maison est de plain-pied, permettant un accès aisé et une vie de plain-pied confortable.
Le terrain spacieux de 1230 m² offre une belle surface extérieure pour vos projets de jardin ou d'aménagement.
ENVIRONNEMENT
Coimères se situe dans un secteur résidentiel. La commune dispose d'une école primaire, l'École Primaire Jacques de Marcellus, accessible à pied en quelques minutes. La présence de commerces autour facilite la vie de tous les jours. Pour vos déplacements, plusieurs gares sont accessibles dans un rayon de quelques kilomètres, notamment celles de Langon, Saint-Macaire et Saint-Pierre-d'Aurillac. Les axes routiers à proximité incluent l'autoroute A62 à 4 km, l'autoroute A65 à 7 km, ainsi que la nationale N524 à 8 km. L'aéroport le plus proche se trouve à 0 km.
NOUS CONTACTER
Cette maison est proposée à la vente au prix de 329 180 euros, honoraires inclus. Le bien est situé en zone PTZ C.
Pour plus d'informations et organiser une visite, n'hésitez pas à contacter Hélène DEFFRESSIGNE de l'agence Maisons de la Côte Atlantique Langon, réseau Maisons de la Côte Atlantique, au O6-25-79-77-67.
Construisez votre maison dans un cadre privilégié à Coimères. Réalisez votre projet dès maintenant en appelant Hélène DEFFRESSIGNE.
Mentions légales
Idée de réalisation en modèle prêt à décorer sur l'un de nos terrains partenaires, sous réserve de disponibilités. Voir détails en agence.Agence Maisons de la Côte Atlantique de Langon (33210)
- Téléphone :
- 05 56 76 82 20
- Adressse :
- 2, Rue du Onze Novembre
33210 Langon, France
