Maison neuve à
Coings (36130) Référence : KG2430666_1

Prix du projet : Maison avec Terrain

prix 158 360 €

  • 3 pièces
  • 2 chambres
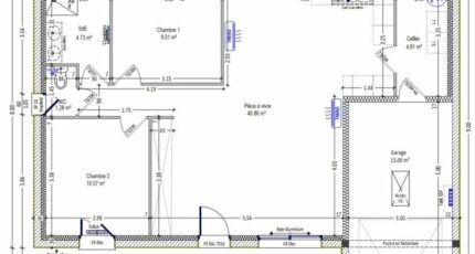
  • Surface maison 70 m2

Coings : Projet de construction maison de 3 pièces (70 m²)
IDÉALEMENT SITUÉE - MAISON 3 PIÈCES NEUVE
En vente à deux pas de Châteauroux, nous vous proposons cette maison de 3 pièces de plain-pied de 70 m² et de 779 m² de terrain, idéalement située dans Coings (36130).
Son intérieur offre deux chambres, une cuisine et une salle de bains. Cette maison est neuve.
Cette maison est située dans un quartier convoité. On y trouve l'École Primaire Cydonia. Côté transports en commun, il y a la gare Châteauroux à moins de 10 minutes en voiture. L'autoroute A20 et la nationale N151 sont accessibles à moins de 6 km. On trouve une bibliothèque à quelques minutes du bien.
Elle est proposée à l'achat pour 158 360 €.
Prenez contact avec Kevin GRIMAUD (tél : *6-22-14-89-67) pour toute information sur la maison, sur les modalités de vente ou sur les démarches à suivre. Maisons Bruno Petit MJB Châteauroux vous accompagne à toutes les étapes de votre projet et dans tous vos projets immobiliers.

Mentions légales

Terrain proposé par un partenaire foncier selon disponibilités et autorisation de publicité au prix de 31 160 €. Hors droit d'enregistrement et frais de notaire. Terrain + Maison proposés au prix de 158 360 € (Hors branchements et raccordements, papiers peints, peintures, revêtement de sol dans les chambres. Tarif modifiable sans préavis). Etiquette énergie : A. Différents modèles disponibles pour ce terrain. Assurances et garanties du constructeur (RC professionnelle, décennale, dommage ouvrage, garantie de remboursement de l'acompte, livraison à prix et délai convenu) : https://www.maisons-brunopetit.fr/mentions-legales/.

Contactez l'agence de Châteauroux

02 54 22 66 24

    * Champs obligatoires

    Vos informations sont traitées par HEXAOM et transmises à un conseiller commercial qui vous contactera afin de répondre à votre demande. Les plans et images présentés sur notre site sont la propriété d’HEXAOM et ne peuvent pas être reproduits sans son accord. Pour retrouver notre politique de protection des données personnelles et exercer vos droits conformément à la « loi informatique et liberté » cliquez-ici.