Maison neuve à
Colayrac-Saint-Cirq
(47450) Référence :
HC2430370_6
Prix du projet : Maison avec Terrain
prix 325 000 €
- 5 pièces
- 4 chambres
- Surface maison 130 m2
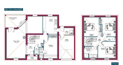
VENTE : maison à étage, 6 pièces 130m²
Maison T6 à 10km d'Agen.
Idéalement située. A proximité des commerces, écoles, médecins, lignes de bus et accès autoroute.
▪️ Modèle Arpège :
En rez-de-chaussée :
- Hall d'entrée
- Cuisine ouverte
- Cellier communiquant au garage
- Salon/séjour donnant sur une terrasse couverte
- Une suite parentale
A l'étage :
- 3 belles chambres avec placards
- Salle de bain avec baignoire et douche
- DPE : A (norme RE2020)
- Modèle entièrement personnalisable
- CCMI et garantie de livraison
Chiffrage projet réalisé sur la base d'une maison prêt à décorer, hors frais de notaire.
Pour toute information sur la maison, sur les modalités de vente ou sur les démarches à suivre, contactez Hugo Chambon au numéro indiqué sur la photo.
Mentions légales
Idée de réalisation en modèle prêt à décorer sur l'un de nos terrains partenaires, sous réserve de disponibilités. Voir détails en agence.Agence Maisons de la Côte Atlantique de Boé (47550)
- Téléphone :
- 05 64 25 07 47
- Adressse :
- 111 Avenue de bigorre
47550 Boé, France
