Maison neuve à 
  Cologne
 (32430)  Référence :
 CC2226735_4 
Prix du projet : Maison avec Terrain
prix 254 550 €
- 4 pièces
- 3 chambres
- Surface maison 125 m2
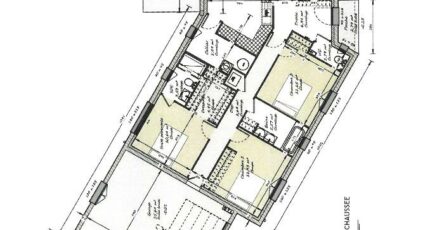
VENTE d'une maison de 4 pièces (125 m²) à Cologne
MAISON 4 PIÈCES NEUVE - PROCHE DE COLOMIERS
En vente : à 31 km de Colomiers, découvrez à Cologne (32430), cette maison de 4 pièces de plain-pied de 125 m² et de 700 m² de terrain. Conçue de plain-pied, elle est composée de trois chambres, d'une cuisine et de deux salles de bains.
La maison est neuve.
Elle est proposée à l'achat pour 254 550 €.
N'hésitez pas à prendre contact avec nous pour obtenir de plus amples renseignements sur ce bien.
Maisons France Confort Tournefeuille 05.61.16.47.77 vous accompagne à toutes les étapes de l'achat et dans tous vos projets immobiliers.
Hors frais annexes.
Annonce proposée par un Agent Commercial Partenaire.
Mentions légales
Terrain proposé par un partenaire foncier selon disponibilités et autorisation de publicité au prix de 65 000 €. Hors droit d'enregistrement et frais de notaire. Maison proposée, avec un contrat de construction de maison individuelle, dans le cadre de la loi du 19/12/1990, au prix de 189 550 € (Hors branchements et raccordements, papiers peints, peintures, revêtement de sol dans les chambres, qui sont chiffrés dans les travaux qui restent à charge du client. Tarif modifiable sans préavis). Étiquette énergie : A. Différents modèles disponibles pour ce terrain. Assurances et garanties du constructeur comprises (RC professionnelle, décennale, dommage ouvrage).Agence Maisons France Confort de Tournefeuille (31170)
- Téléphone :
- 05 61 16 47 77
- Adressse :
-  114 chemin de Larramet
 31170 Tournefeuille, France
 
  
  
  
  
  
  
 