Maison neuve à
Colomiers (31770) Référence : SP2484255_3

Prix du projet : Maison avec Terrain

prix 460 000 €

  • 6 pièces
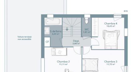
  • 4 chambres
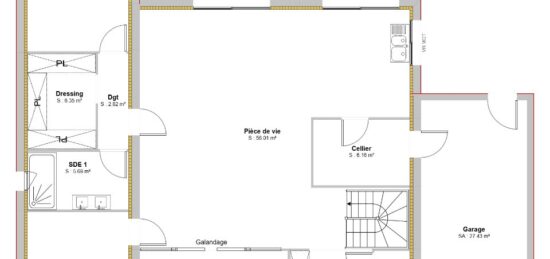
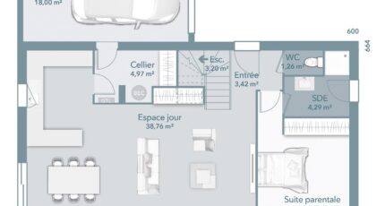
  • Surface maison 110 m2

Maison de 6 pièces (110 m²) en vente à Colomiers
MAISON 6 PIÈCES NEUVE
À vendre : Maisons France Confort Tournefeuille vous propose cette maison de 6 pièces de 110 m² à Colomiers (31770). Son intérieur comporte quatre chambres, une cuisine et deux salles de bains.
Le terrain de la propriété s'étend sur 420 m².
C'est une maison de 2 niveaux. Elle est neuve.
Plusieurs écoles (maternelle, élémentaire et collège) sont implantées à moins de 10 minutes à pied, tout comme deux crèches. Niveau transports, on trouve la gare Colomiers Lycée International dans les environs. On trouve un accès à la nationale N124 à 1 km. Il y a une bibliothèque, des commerces, un bureau de poste, une épicerie et des boucheries-charcuteries à quelques minutes à peine. Le marché Place du Languedoc anime le quartier.
Elle est proposée à l'achat pour 460 000 €.
Contactez notre agence pour obtenir de plus amples informations sur la maison, sur les modalités de vente et sur les démarches à suivre. Faites de vos projets immobiliers une réalité avec Maisons France Confort Tournefeuille.

Annonce proposée par un Agent Commercial Partenaire.

Mentions légales

Terrain proposé par un partenaire foncier selon disponibilités et autorisation de publicité au prix de 170 000 €. Hors droit d'enregistrement et frais de notaire. Terrain + Maison proposés au prix de 460 000 € (Hors branchements et raccordements, papiers peints, peintures, revêtement de sol dans les chambres. Tarif modifiable sans préavis). Etiquette énergie : A. Différents modèles disponibles pour ce terrain. Assurances et garanties du constructeur (RC professionnelle, décennale, dommage ouvrage, garantie de remboursement de l'acompte, livraison à prix et délai convenu) : https://www.maisons-france-confort.fr/mentions-legales/. HEXAOM Services est enregistré auprès de l'ORIAS en tant que Courtier en financement, Niveau 1, sous le numéro 14001345.

Contactez l'agence de Tournefeuille

05 61 16 47 77

    * Champs obligatoires

    Vos informations sont traitées par HEXAOM et transmises à un conseiller commercial qui vous contactera afin de répondre à votre demande. Les plans et images présentés sur notre site sont la propriété d’HEXAOM et ne peuvent pas être reproduits sans son accord. Pour retrouver notre politique de protection des données personnelles et exercer vos droits conformément à la « loi informatique et liberté » cliquez-ici.