Maison neuve à
Commequiers
(85220) Référence :
CM2493244_4
Prix du projet : Maison avec Terrain
prix 374 490 €
- 5 pièces
- 4 chambres
- Surface maison 115 m2
Camille MORICE tél : 06-71-72-13-06
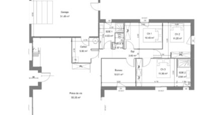
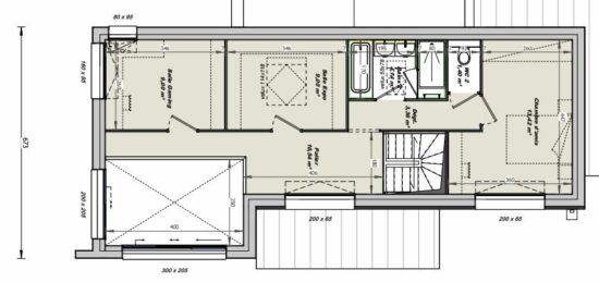
VENTE : maison F5 (115 m²) à Commequiers
MAISON 5 PIÈCES NEUVE
À 12 km de l'océan Atlantique, nous sommes heureux de vous présenter cette maison de 5 pièces de plain-pied de 115 m² et de 675 m² de terrain à Commequiers (85220).
Conçue de plain-pied, elle compte quatre chambres, une cuisine et deux salles de bains. Cette maison est neuve.
L'École Primaire Publique Robert Doisneau et l'École Primaire Privée Mixte Saint Pierre sont implantées à moins de 10 minutes à pied. Côté transports, on trouve la gare Challans à moins de 10 minutes en voiture. Il y a un tennis, deux commerces et une poissonnerie dans les environs.
Elle est proposée à l'achat pour 374 490 €.
Contactez Camille MORICE (tél : 06-71-72-13-06) pour plus d'informations sur cette maison ou sur les modalités de vente. Donnez vie à vos projets immobiliers avec LMP Constructeur Challans.
Camille MORICE tél : 06-71-72-13-06
Mentions légales
Terrain proposé par un partenaire foncier selon disponibilités et autorisation de publicité au prix de 88 500 €. Hors droit d'enregistrement et frais de notaire. Terrain + Maison proposés au prix de 374 490 € (Hors branchements et raccordements, papiers peints, peintures, revêtement de sol dans les chambres. Tarif modifiable sans préavis). Etiquette énergie : A. Différents modèles disponibles pour ce terrain. Assurances et garanties du constructeur (RC professionnelle, décennale, dommage ouvrage, garantie de remboursement de l'acompte, livraison à prix et délai convenu) : https://www.lmp-constructeur.com/mentions-legales/.Agence Logis du Marais Poitevin de Challans (85300)
- Téléphone :
- 02 51 55 17 74
- Adressse :
- 4 Place du Champ de Foire
85300 Challans, France
