Maison neuve à
Condé-sur-Vire
(50890) Référence :
JS2485152_2
Prix du projet : Maison avec Terrain
prix 199 414 €
- 5 pièces
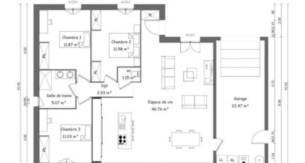
- 3 chambres
- Surface maison 95 m2
Maison T5 (95 m²) en vente à Condé-sur-Vire
IDÉALEMENT SITUÉE - MAISON 5 PIÈCES NEUVE
Nous vous présentons cette maison de 5 pièces de plain-pied de 95 m² idéalement située dans Condé-sur-Vire (50890).
Elle comporte trois chambres, une cuisine et deux salles de bains. Cette maison est neuve.
Le terrain de la propriété est de 419 m².
La propriété est située dans un secteur convoité. On y trouve des écoles maternelles et élémentaires. La nationale N174 est accessible à 1 km. Il y a un commerce dans les environs.
Son prix de vente est de 199 414 €.
Contactez Emilie HUE (tél : 06-29-81-46-66) pour toute question sur la maison, sur les modalités de vente ou sur les démarches à suivre. Maisons France Confort Bayeux vous accompagne à toutes les étapes de l'achat et dans tous vos projets immobiliers.
Annonce proposée par un Agent Commercial Partenaire.
Mentions légales
Terrain proposé par un partenaire foncier selon disponibilités et autorisation de publicité au prix de 44 414 €. Hors droit d'enregistrement et frais de notaire. Terrain + Maison proposés au prix de 199 414 € (Hors branchements et raccordements, papiers peints, peintures, revêtement de sol dans les chambres. Tarif modifiable sans préavis). Etiquette énergie : A. Différents modèles disponibles pour ce terrain. Assurances et garanties du constructeur (RC professionnelle, décennale, dommage ouvrage, garantie de remboursement de l'acompte, livraison à prix et délai convenu) : https://www.maisons-france-confort.fr/mentions-legales/. HEXAOM Services est enregistré auprès de l'ORIAS en tant que Courtier en financement, Niveau 1, sous le numéro 14001345.Agence Maisons France Confort de Bayeux (14400)
- Téléphone :
- 02 31 51 20 91
- Adressse :
- 2, rue Saint Loup
14400 Bayeux, France
