Maison neuve à
Condécourt (95450) Référence : CY2466756_1

Prix du projet : Maison avec Terrain

prix 312 000 €

  • 5 pièces
  • 3 chambres
  • Surface maison 80 m2

Maison de 5 pièces (80 m²) à vendre à Condécourt
IDÉALEMENT SITUÉE - MAISON 5 PIÈCES NEUVE
À côté de la gare de Vaux-sur-Seine (Paris à 35 min avec le Transilien J), laissez vous charmer par cette maison de 5 pièces de 80 m² idéalement située dans Condécourt (95450).
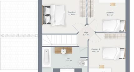
C'est une maison de 2 niveaux. Son intérieur offre trois chambres, une cuisine et une salle de bains. La maison est neuve.
Le terrain du bien s'étend sur 295 m².
Cette maison se situe dans un quartier prisé. Une école primaire y est implantée. Niveau transports, on trouve la ligne de RER A (Cergy Le Haut) ainsi que 16 gares à moins de 10 minutes en voiture. Il y a un tennis à quelques minutes à peine.
Elle est proposée à l'achat pour 312 000 €.
Prenez contact avec notre agence (Cedric YAHIAOUI : 06-66-57-00-63) pour toute information sur la maison ou sur les démarches à suivre. Donnez vie à vos projets immobiliers avec Maisons France Confort Mareuil-lès-Meaux.

Annonce proposée par un Agent Commercial Partenaire.

Mentions légales

Terrain proposé par un partenaire foncier selon disponibilités et autorisation de publicité au prix de 122 000 €. Hors droit d'enregistrement et frais de notaire. Terrain + Maison proposés au prix de 312 000 € (Hors branchements et raccordements, papiers peints, peintures, revêtement de sol dans les chambres. Tarif modifiable sans préavis). Etiquette énergie : A. Différents modèles disponibles pour ce terrain. Assurances et garanties du constructeur (RC professionnelle, décennale, dommage ouvrage, garantie de remboursement de l'acompte, livraison à prix et délai convenu) : https://www.maisons-france-confort.fr/mentions-legales/. HEXAOM Services est enregistré auprès de l'ORIAS en tant que Courtier en financement, Niveau 1, sous le numéro 14001345.

Contactez l'agence de Mareuil-lès-Meaux

01 60 09 28 30

    * Champs obligatoires

    Vos informations sont traitées par HEXAOM et transmises à un conseiller commercial qui vous contactera afin de répondre à votre demande. Les plans et images présentés sur notre site sont la propriété d’HEXAOM et ne peuvent pas être reproduits sans son accord. Pour retrouver notre politique de protection des données personnelles et exercer vos droits conformément à la « loi informatique et liberté » cliquez-ici.