Maison neuve à
Condécourt
(95450) Référence :
CY2467020_1
Prix du projet : Maison avec Terrain
prix 303 000 €
- 5 pièces
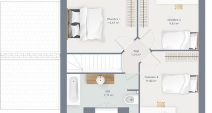
- 3 chambres
- Surface maison 80 m2
Condécourt : maison de 5 pièces (80 m²) en vente
IDÉALEMENT SITUÉE - MAISON 5 PIÈCES NEUVE
À vendre : à côté de la gare de Vaux-sur-Seine (Paris à 35 min par le Transilien J), venez découvrir, idéalement située dans Condécourt (95450), cette maison de 5 pièces de 80 m² et de 113 000 m² de terrain. Elle dispose de trois chambres, d'une cuisine et d'une salle de bains.
C'est une maison de 2 niveaux. Elle est neuve.
Cette maison se trouve dans un quartier recherché. Une école primaire y est implantée. Niveau transports, il y a la ligne de RER A (Cergy Le Haut) ainsi que 16 gares à moins de 10 minutes en voiture. On trouve un tennis dans les environs.
Son prix de vente est de 303 000 €.
Contactez notre agence (YAHIAOUI Cedric : 06-66-57-00-63) pour tout renseignement sur la maison, sur les modalités de vente ou sur les démarches à suivre. Maisons France Confort Mareuil-lès-Meaux vous accompagne à toutes les étapes de l'achat et dans tous vos projets immobiliers.
Annonce proposée par un Agent Commercial Partenaire.
Mentions légales
Terrain proposé par un partenaire foncier selon disponibilités et autorisation de publicité au prix de 113 000 €. Hors droit d'enregistrement et frais de notaire. Terrain + Maison proposés au prix de 303 000 € (Hors branchements et raccordements, papiers peints, peintures, revêtement de sol dans les chambres. Tarif modifiable sans préavis). Etiquette énergie : A. Différents modèles disponibles pour ce terrain. Assurances et garanties du constructeur (RC professionnelle, décennale, dommage ouvrage, garantie de remboursement de l'acompte, livraison à prix et délai convenu) : https://www.maisons-france-confort.fr/mentions-legales/. HEXAOM Services est enregistré auprès de l'ORIAS en tant que Courtier en financement, Niveau 1, sous le numéro 14001345.Agence Maisons France Confort de Mareuil-lès-Meaux (77100)
- Téléphone :
- 01 60 09 28 30
- Adressse :
- Domexpo Est Village La Hayette
77100 Mareuil-lès-Meaux, France
