Maison neuve à
Condorcet
(26110) Référence :
OP2486464_1
Prix du projet : Maison avec Terrain
prix 368 000 €
- 5 pièces
- 4 chambres
- Surface maison 113 m2
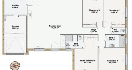
LUMI 113 - Une maison lumineuse et fonctionnelle, pensée pour votre bien-être
Maisons France Confort vous propose la LUMI 113, un modèle de maison de plain-pied à ossature bois, alliant esthétique, confort et performance. Conçue pour favoriser la lumière naturelle, cette maison offre un cadre de vie chaleureux et agréable au quotidien.
Sa pièce de vie principale, d'une surface de 45,01 m², s'ouvre largement sur l'extérieur, créant un espace convivial et accueillant. L'ossature bois assure une excellente isolation thermique et acoustique, tout en apportant une touche naturelle et douce à l'ensemble.
La maison comprend trois chambres, dont une suite parentale avec salle d'eau privative, garantissant à chacun son espace d'intimité. L'agencement a été pensé pour simplifier le quotidien : un cellier fonctionnel, un garage intégré, deux salles d'eau, des toilettes séparées et un dégagement central facilitent la circulation entre les pièces.
LUMI 113 offre également de nombreuses options pour répondre à vos envies de modernité : volets roulants électriques, centralisation des ouvertures, solutions domotiques... Autant d'équipements pour améliorer le confort de votre foyer.
Pour plus d'informations sur ce modèle ou pour découvrir d'autres projets personnalisables, n'hésitez pas à contacter votre conseiller en construction :
Olivier PUAUX - 06.01.46.37.15
Maisons France Confort
Il vous accompagnera avec plaisir dans toutes les étapes de votre projet de construction.
Mentions légales
Terrain proposé par un partenaire foncier selon disponibilités et autorisation de publicité au prix de 86 000 €. Hors droit d'enregistrement et frais de notaire. Terrain + Maison proposés au prix de 368 000 € (Hors branchements et raccordements, papiers peints, peintures, revêtement de sol dans les chambres. Tarif modifiable sans préavis). Etiquette énergie : A. Différents modèles disponibles pour ce terrain. Assurances et garanties du constructeur (RC professionnelle, décennale, dommage ouvrage, garantie de remboursement de l'acompte, livraison à prix et délai convenu) : https://www.maisons-france-confort.fr/mentions-legales/. HEXAOM Services est enregistré auprès de l'ORIAS en tant que Courtier en financement, Niveau 1, sous le numéro 14001345.Agence Maisons France Confort de Montélimar (26200)
- Téléphone :
- 04 75 92 40 32
- Adressse :
- Bd du Président François Mitterrand
26200 Montélimar, France
