Maison neuve à
Confrançon (01310) Référence : SG2559_3

Prix du projet : Maison avec Terrain

prix 234 500 €

  • 4 pièces
  • 3 chambres
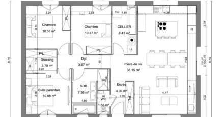
  • Surface maison 96 m2

Confrançon : maison T4 (96 m²) en vente
MAISON 4 PIÈCES NEUVE - PROCHE DE BOURG-EN-BRESSE
À vendre : localisée à deux pas de Bourg-en-Bresse, nous vous présentons à Confrançon (01310), cette maison de 4 pièces de plain-pied de 96 m².
Son intérieur inclut trois chambres, une cuisine et une salle de bains. La maison est neuve.
Le terrain de la propriété s'étend sur 695 m².
Une école primaire est implantée dans le quartier. Côté transports, il y a les gares Mézériat, Polliat et Vonnas à moins de 10 minutes en voiture. L'autoroute A40 est accessible à 4 km. On trouve un tennis et une bibliothèque dans les environs.
Son prix de vente est de 234 500 €.
Prenez contact avec notre agence (GABRILLARGUES Sébastien : 06-81-77-73-67) pour toute question sur cette maison ou sur les modalités de vente. Maisons France Confort Bourg-en-Bresse vous accompagne dans tous vos projets immobiliers et à toutes les étapes de votre projet.

Annonce proposée par un Agent Commercial Partenaire.

Mentions légales

Terrain proposé par un partenaire foncier selon disponibilités et autorisation de publicité au prix de 74 250 €. Hors droit d'enregistrement et frais de notaire. Maison proposée, avec un contrat de construction de maison individuelle, dans le cadre de la loi du 19/12/1990, au prix de 160 250 € (Hors branchements et raccordements, papiers peints, peintures, revêtement de sol dans les chambres, qui sont chiffrés dans les travaux qui restent à charge du client. Tarif modifiable sans préavis). Étiquette énergie : A. Différents modèles disponibles pour ce terrain. Assurances et garanties du constructeur comprises (RC professionnelle, décennale, dommage ouvrage).

Contactez l'agence de Bourg-en-Bresse

04 74 14 04 47

    * Champs obligatoires

    Vos informations sont traitées par HEXAOM et transmises à un conseiller commercial qui vous contactera afin de répondre à votre demande. Les plans et images présentés sur notre site sont la propriété d’HEXAOM et ne peuvent pas être reproduits sans son accord. Pour retrouver notre politique de protection des données personnelles et exercer vos droits conformément à la « loi informatique et liberté » cliquez-ici.