Maison neuve à
Congis-sur-Thérouanne (77440) Référence : CY2431439_1

Prix du projet : Maison avec Terrain

prix 303 500 €

  • 5 pièces
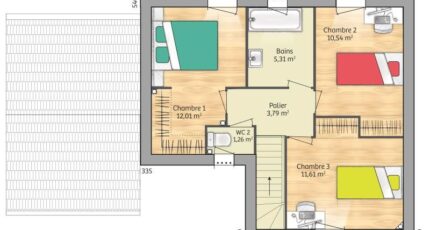
  • 3 chambres
  • Surface maison 90 m2

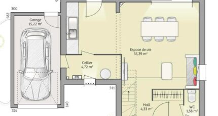
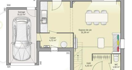
Congis-sur-Thérouanne : maison T5 (90 m²) à vendre
MAISON 5 PIÈCES NEUVE - PROCHE DE MEAUX
À deux pas de la gare d'Isles-Armentières-Congis (Paris à 40 min avec le Transilien P), en vente à Congis-sur-Thérouanne (77440), Maisons France Confort Magny-le-Hongre vous présente cette maison de 5 pièces de 90 m². Elle est composée de trois chambres, d'une cuisine et d'une salle de bains.
Le terrain de la propriété s'étend sur 1 014 m².
Cette maison possède 2 niveaux. Elle est neuve.
Il y a des écoles primaires à moins de 10 minutes à pied et, parmi lesquelles l'École Maternelle Casse-Noisettes. Niveau transports, on trouve cinq gares à moins de 10 minutes en voiture. Il y a un tennis, une boulangerie, un commerce, une boucherie-charcuterie et un bureau de poste dans les environs.
Son prix de vente est de 303 500 €.
Contactez Cedric YAHIAOUI (tél : 06-66-57-00-63) pour tout renseignement sur cette maison.

Annonce proposée par un Agent Commercial Partenaire.

Mentions légales

Terrain proposé par un partenaire foncier selon disponibilités et autorisation de publicité au prix de 143 500 €. Hors droit d'enregistrement et frais de notaire. Terrain + Maison proposés au prix de 303 500 € (Hors branchements et raccordements, papiers peints, peintures, revêtement de sol dans les chambres. Tarif modifiable sans préavis). Etiquette énergie : A. Différents modèles disponibles pour ce terrain. Assurances et garanties du constructeur (RC professionnelle, décennale, dommage ouvrage, garantie de remboursement de l'acompte, livraison à prix et délai convenu) : https://www.maisons-france-confort.fr/mentions-legales/. HEXAOM Services est enregistré auprès de l'ORIAS en tant que Courtier en financement, Niveau 1, sous le numéro 14001345.

Contactez l'agence de Magny-le-Hongre

01 84 80 92 96

    * Champs obligatoires

    Vos informations sont traitées par HEXAOM et transmises à un conseiller commercial qui vous contactera afin de répondre à votre demande. Les plans et images présentés sur notre site sont la propriété d’HEXAOM et ne peuvent pas être reproduits sans son accord. Pour retrouver notre politique de protection des données personnelles et exercer vos droits conformément à la « loi informatique et liberté » cliquez-ici.