Maison neuve à
Corneilhan
(34490) Référence :
AB2477340_1
Prix du projet : Maison avec Terrain
prix 224 000 €
- 2 pièces
- 1 chambre
- Surface maison 50 m2
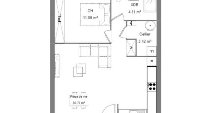
PROJET DE CONSTRUCTION - Maison T2 (50 m²) à Corneilhan
PROCHE DE BÉZIERS - MAISON 2 PIÈCES
À vendre à 21 km de la côte méditerranéenne et à deux pas de Béziers, à Corneilhan (34490), Maisons France Confort Béziers vous propose cette maison de 2 pièces de plain-pied de 50 m² et de 443 m² de terrain.
Conçue de plain-pied, elle compte une chambre, une cuisine, un cellier et une salle de bains.
(Carrelage inclus dans toutes les pièces / Raccordements inclus).
Il y a une école primaire dans le quartier et une structure d'accueil pour les enfants en bas âge. Niveau transports en commun, on trouve deux gares (Béziers et Magalas) à moins de 10 minutes en voiture. On trouve un accès à l'autoroute A75 à 7 km. Il y a un tennis, une épicerie et deux boucheries-charcuteries dans les environs.
Elle est à vendre pour la somme de 224 000 €.
Pour plus d'information contacter (Anthony BALLESTER : 06-27-21-51-55) Maisons France Confort Béziers pour échanger sur votre projet et réaliser une étude gratuite. (Plan personnalisable). Tous nos ouvrages sont réalisés sur-mesure en fonction de vos attentes et de nos échanges avec vous ainsi que dans le respect de la règlementation RE 2020. Ce projet comporte les garanties suivantes: Contrat de construction CCMI. Dommage/Ouvrage. RC Garantie décennale. Parfaite achèvement. Etude de sol G2. Prix et délais convenu. Garantie de livraison. Garantie financière Pour votre tranquillité nous nous occupons de toutes les formalités administratives.
Mentions légales
Terrain proposé par un partenaire foncier selon disponibilités et autorisation de publicité au prix de 125 000 €. Hors droit d'enregistrement et frais de notaire. Terrain + Maison proposés au prix de 224 000 € (Hors branchements et raccordements, papiers peints, peintures, revêtement de sol dans les chambres. Tarif modifiable sans préavis). Etiquette énergie : A. Différents modèles disponibles pour ce terrain. Assurances et garanties du constructeur (RC professionnelle, décennale, dommage ouvrage, garantie de remboursement de l'acompte, livraison à prix et délai convenu) : https://www.maisons-france-confort.fr/mentions-legales/. HEXAOM Services est enregistré auprès de l'ORIAS en tant que Courtier en financement, Niveau 1, sous le numéro 14001345.Agence Maisons France Confort de Béziers (34500)
- Téléphone :
- 04 67 00 85 60
- Adressse :
- 66, avenue Pierre Verdier
34500 Béziers, France