Maison neuve à
Amillis
(77120) Référence :
TM2317586_1
Prix du projet : Maison avec Terrain
prix 460 000 €
- 5 pièces
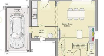
- 3 chambres
- Surface maison 90 m2
VENTE : maison F5 (90 m²) à Coupvray
MAISON 5 PIÈCES NEUVE - PROCHE DE MONTREUIL
À deux pas de la gare d'Esbly (Paris à 30 min par le Transilien P), laissez vous charmer par cette maison de 5 pièces de 90 m² et de 400 m² de terrain à vendre à Coupvray (77700). Elle se divise en trois chambres, une cuisine et une salle de bains.
Cette maison comporte 2 niveaux. Elle est neuve.
L'École Élémentaire Francis et Odette Teisseyre, l'École Maternelle Francis et Odette Teisseyre, le Collège Louis Braille et l'École Primaire Jean-Louis Etienne sont implantés à moins de 10 minutes à pied. Côté transports en commun, il y a la ligne de RER A (Chessy-Marne-La-Vallée) ainsi que huit gares à moins de 10 minutes en voiture. On trouve trois tennis, un bassin de natation, deux boulangeries et un supermarché à quelques minutes du bien.
Elle est proposée à l'achat pour 460 000 €.
Contactez notre agence (MELES Teddy : 06-17-56-83-36) pour toute information sur cette maison ou sur les démarches à suivre. Maisons France Confort Magny-le-Hongre vous accompagne dans tous vos projets immobiliers et à toutes les étapes de l'achat.
Annonce proposée par un Agent Commercial Partenaire.
Mentions légales
Terrain proposé par un partenaire foncier selon disponibilités et autorisation de publicité au prix de 70 000 €. Hors droit d'enregistrement et frais de notaire. Maison proposée, avec un contrat de construction de maison individuelle, dans le cadre de la loi du 19/12/1990, au prix de 390 000 € (Hors branchements et raccordements, papiers peints, peintures, revêtement de sol dans les chambres, qui sont chiffrés dans les travaux qui restent à charge du client. Tarif modifiable sans préavis). Étiquette énergie : A. Différents modèles disponibles pour ce terrain. Assurances et garanties du constructeur comprises (RC professionnelle, décennale, dommage ouvrage).Agence Maisons France Confort de Magny-le-Hongre (77700)
- Téléphone :
- 01 84 80 92 96
- Adressse :
- 11 rue de Courtalin
77700 Magny-le-Hongre, France
