Maison neuve à
Courances
(91490) Référence :
SH2469929_2
Prix du projet : Maison avec Terrain
prix 321 882 €
- 5 pièces
- 4 chambres
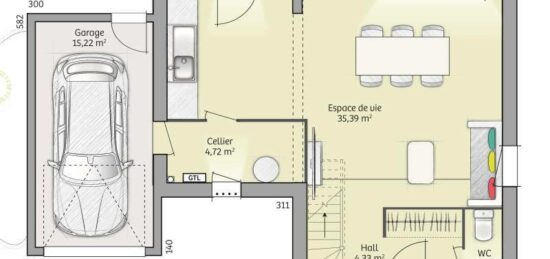
- Surface maison 96 m2
Maison T5 (96 m²) en vente à Courances
MAISON 5 PIÈCES NEUVE
À vendre : localisée à 21 km d'Évry-Courcouronnes, votre agence Maisons France Confort Nemours est heureuse de vous proposer cette maison de 5 pièces de 96 m² et de 468 m² de terrain à Courances (91490).
C'est une maison de 2 niveaux. Son intérieur est composé de quatre chambres, d'une cuisine et d'une salle de bains. Cette maison est neuve.
L'École Primaire la Source est implantée à moins de 10 minutes à pied. Niveau transports, on trouve la ligne de RER D (Boutigny-Sur-Essonne) ainsi que les gares Boutigny-sur-Essonne et Maisse à moins de 10 minutes en voiture.
Elle est à vendre pour la somme de 321 882 €.
N'hésitez pas à prendre contact avec Stéphan HOURMANT (07-86-01-34-48) pour toute information sur la maison ou sur les modalités de vente.
Annonce proposée par un Agent Commercial Partenaire.
Mentions légales
Terrain proposé par un partenaire foncier selon disponibilités et autorisation de publicité au prix de 129 000 €. Hors droit d'enregistrement et frais de notaire. Terrain + Maison proposés au prix de 321 882 € (Hors branchements et raccordements, papiers peints, peintures, revêtement de sol dans les chambres. Tarif modifiable sans préavis). Etiquette énergie : A. Différents modèles disponibles pour ce terrain. Assurances et garanties du constructeur (RC professionnelle, décennale, dommage ouvrage, garantie de remboursement de l'acompte, livraison à prix et délai convenu) : https://www.maisons-france-confort.fr/mentions-legales/. HEXAOM Services est enregistré auprès de l'ORIAS en tant que Courtier en financement, Niveau 1, sous le numéro 14001345.Agence Maisons France Confort de Nemours (77140)
- Téléphone :
- 01 64 28 58 32
- Adressse :
- 16 Avenue Carnot
77140 Nemours, France
