Maison neuve à
Courlon-sur-Yonne
(89140) Référence :
CY2430643_1
Prix du projet : Maison avec Terrain
prix 211 000 €
- 5 pièces
- 3 chambres
- Surface maison 90 m2
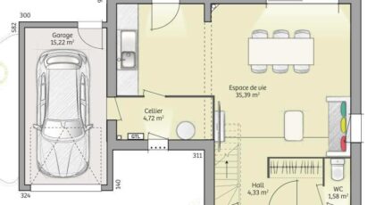
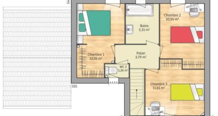
VENTE : maison de 5 pièces (90 m²) à Courlon-sur-Yonne
MAISON 5 PIÈCES NEUVE - PROCHE DE SENS
À vendre à quelques kilomètres de Sens, nous vous proposons à Courlon-sur-Yonne (89140), cette maison de 5 pièces de 90 m².
Il s'agit d'une maison de 2 niveaux. Son intérieur comporte trois chambres, une cuisine et une salle de bains. Cette maison est neuve.
Le terrain du bien s'étend sur 769 m².
L'École Maternelle Jacques Prévert et l'École Élémentaire Francis Ponge sont implantées à moins de 10 minutes à pied. Niveau transports, il y a trois gares (Champigny sur Yonne, Pont-sur-Yonne et Villeneuve-la-Guyard) à moins de 10 minutes en voiture. Les autoroutes A5 et A19 sont accessibles à moins de 13 km. On trouve une boulangerie, une boucherie-charcuterie et une épicerie à quelques minutes à peine.
Elle est à vendre pour la somme de 211 000 €.
N'hésitez pas à prendre contact avec notre agence (YAHIAOUI Cedric : 06-66-57-00-63) pour toute question sur le bien, sur les modalités de vente ou sur les démarches à suivre.
Annonce proposée par un Agent Commercial Partenaire.
Mentions légales
Terrain proposé par un partenaire foncier selon disponibilités et autorisation de publicité au prix de 51 000 €. Hors droit d'enregistrement et frais de notaire. Terrain + Maison proposés au prix de 211 000 € (Hors branchements et raccordements, papiers peints, peintures, revêtement de sol dans les chambres. Tarif modifiable sans préavis). Etiquette énergie : A. Différents modèles disponibles pour ce terrain. Assurances et garanties du constructeur (RC professionnelle, décennale, dommage ouvrage, garantie de remboursement de l'acompte, livraison à prix et délai convenu) : https://www.maisons-france-confort.fr/mentions-legales/. HEXAOM Services est enregistré auprès de l'ORIAS en tant que Courtier en financement, Niveau 1, sous le numéro 14001345.Agence Maisons France Confort de Magny-le-Hongre (77700)
- Téléphone :
- 01 84 80 92 96
- Adressse :
- 11 rue de Courtalin
77700 Magny-le-Hongre, France
