Maison neuve à
Courlon-sur-Yonne
(89140) Référence :
CY2430643_2
Prix du projet : Maison avec Terrain
prix 231 000 €
- 6 pièces
- 4 chambres
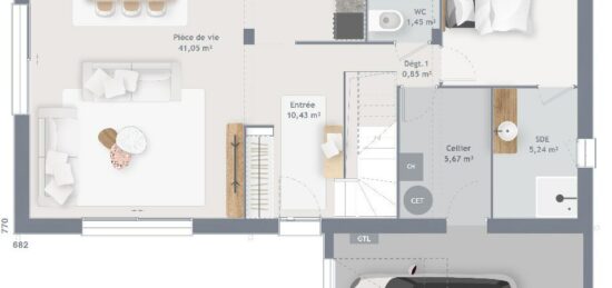
- Surface maison 100 m2
Maison de 6 pièces (100 m²) à vendre à Courlon-sur-Yonne
PROCHE DE SENS - MAISON 6 PIÈCES NEUVE
À quelques kilomètres de Sens, notre agence Maisons France Confort Magny-le-Hongre est heureuse de vous présenter en vente à Courlon-sur-Yonne (89140), cette maison de 6 pièces de 100 m² et de 769 m² de terrain.
Cette maison comporte 2 niveaux. Son intérieur comporte quatre chambres, une cuisine et une salle de bains. La maison est neuve.
On trouve l'École Maternelle Jacques Prévert et l'École Élémentaire Francis Ponge à moins de 10 minutes à pied. Niveau transports, il y a les gares Champigny sur Yonne, Pont-sur-Yonne et Villeneuve-la-Guyard à moins de 10 minutes en voiture. Les autoroutes A5 et A19 sont accessibles à moins de 13 km. On trouve une boulangerie, une épicerie et une boucherie-charcuterie à proximité du logement.
Elle est à vendre pour la somme de 231 000 €.
Prenez contact avec notre agence (Cedric YAHIAOUI : 06-66-57-00-63) pour plus de renseignements sur cette propriété.
Annonce proposée par un Agent Commercial Partenaire.
Mentions légales
Terrain proposé par un partenaire foncier selon disponibilités et autorisation de publicité au prix de 51 000 €. Hors droit d'enregistrement et frais de notaire. Terrain + Maison proposés au prix de 231 000 € (Hors branchements et raccordements, papiers peints, peintures, revêtement de sol dans les chambres. Tarif modifiable sans préavis). Etiquette énergie : A. Différents modèles disponibles pour ce terrain. Assurances et garanties du constructeur (RC professionnelle, décennale, dommage ouvrage, garantie de remboursement de l'acompte, livraison à prix et délai convenu) : https://www.maisons-france-confort.fr/mentions-legales/. HEXAOM Services est enregistré auprès de l'ORIAS en tant que Courtier en financement, Niveau 1, sous le numéro 14001345.Agence Maisons France Confort de Mareuil-lès-Meaux (77100)
- Téléphone :
- 01 60 09 28 30
- Adressse :
- Domexpo Est Village La Hayette
77100 Mareuil-lès-Meaux, France
