Maison neuve à
Cournonterral (34660) Référence : LR2463108_2

Prix du projet : Maison avec Terrain

prix 362 000 €

  • 5 pièces
  • 3 chambres
  • Surface maison 92 m2

VENTE : maison T5 (92 m²) à Cournonterral

IDÉALEMENT SITUÉE - MAISON 5 PIÈCES NEUVE

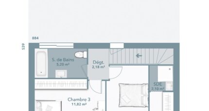
À vendre : à 12 Minutes de Montpellier, à 20 minutes de Palavas-les-Flots, à 45 minutes de Béziers, nous sommes ravis de vous présenter cette maison de 5 pièces de 92 m² et de 216 m² de terrain idéalement située dans Cournonterral (34660). Elle comporte trois chambres, une cuisine et trois salles de bains.
Il s'agit d'une maison de 2 niveaux. Elle est neuve.
La maison est située dans un quartier attractif. Des établissements scolaires primaires se trouvent à moins de 10 minutes à pied, tout comme deux crèches. Côté transports en commun, il y a la gare Vic-Mireval à moins de 10 minutes en voiture. Les autoroutes A750, A9 et A709 et la nationale N109 sont accessibles à moins de 10 km. On trouve un tennis, un bassin de natation, des commerces, deux épiceries, un bureau de poste et trois boucheries-charcuteries à quelques minutes du logement.
Elle est proposée à l'achat pour 362 000 €.
Prenez contact avec notre agence (Lionel ROMERA : 06-30-39-77-79) pour tout renseignement sur la maison. Maisons France Confort Montpellier vous accompagne dans toutes vos démarches et dans tous vos projets immobiliers.

Annonce proposée par un Agent Commercial Partenaire.

Mentions légales

Terrain proposé par un partenaire foncier selon disponibilités et autorisation de publicité au prix de 142 000 €. Hors droit d'enregistrement et frais de notaire. Terrain + Maison proposés au prix de 362 000 € (Hors branchements et raccordements, papiers peints, peintures, revêtement de sol dans les chambres. Tarif modifiable sans préavis). Etiquette énergie : A. Différents modèles disponibles pour ce terrain. Assurances et garanties du constructeur (RC professionnelle, décennale, dommage ouvrage, garantie de remboursement de l'acompte, livraison à prix et délai convenu) : https://www.maisons-france-confort.fr/mentions-legales/. HEXAOM Services est enregistré auprès de l'ORIAS en tant que Courtier en financement, Niveau 1, sous le numéro 14001345.

Contactez l'agence de Montpellier

04 67 64 85 11

    * Champs obligatoires

    Vos informations sont traitées par HEXAOM et transmises à un conseiller commercial qui vous contactera afin de répondre à votre demande. Les plans et images présentés sur notre site sont la propriété d’HEXAOM et ne peuvent pas être reproduits sans son accord. Pour retrouver notre politique de protection des données personnelles et exercer vos droits conformément à la « loi informatique et liberté » cliquez-ici.