Maison neuve à
Courpalay (77540) Référence : CY2406298_2

Prix du projet : Maison avec Terrain

prix 239 000 €

  • 5 pièces
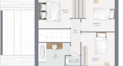
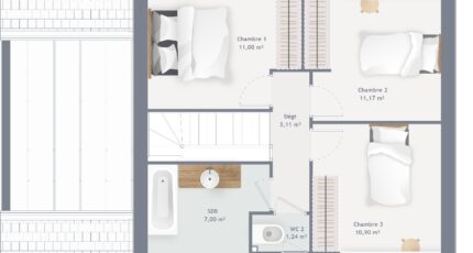
  • 3 chambres
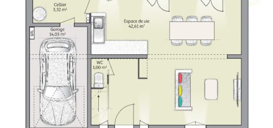
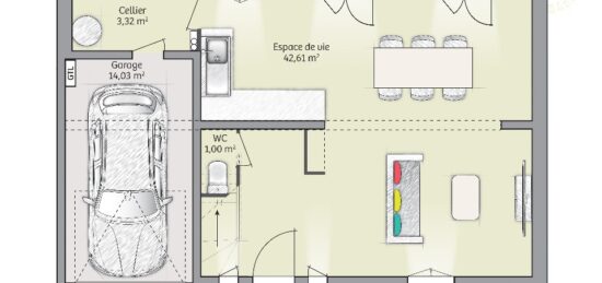
  • Surface maison 90 m2

Courpalay : maison de 5 pièces (90 m²) en vente
IDÉALEMENT SITUÉE - MAISON 5 PIÈCES NEUVE
À côté de la gare de Mormant (Paris à 35 min avec le Transilien P), votre agence Maisons France Confort Mareuil-lès-Meaux est ravie de vous présenter à vendre, idéalement située dans Courpalay (77540), cette maison de 5 pièces de 90 m². Elle dispose de trois chambres, d'une cuisine et d'une salle de bains.
Le terrain de la propriété s'étend sur 827 m².
C'est une maison de 2 niveaux. Elle est neuve.
La propriété se trouve dans un secteur convoité. Il y a l'École Élémentaire la Fayette et l'École Maternelle Petit Prince à moins de 10 minutes à pied. Niveau transports en commun, on trouve les gares Mormant et Verneuil-l'Étang à moins de 10 minutes en voiture. On trouve un bassin de natation, un tennis, un commerce et une boulangerie à proximité.
Elle est à vendre pour la somme de 239 000 €.
Prenez contact avec Cedric YAHIAOUI (06-66-57-00-63) pour obtenir de plus amples renseignements sur la maison ou sur les démarches à suivre. Maisons France Confort Mareuil-lès-Meaux vous accompagne dans tous vos projets immobiliers et à toutes les étapes de votre projet.

Annonce proposée par un Agent Commercial Partenaire.

Mentions légales

Terrain proposé par un partenaire foncier selon disponibilités et autorisation de publicité au prix de 77 000 €. Hors droit d'enregistrement et frais de notaire. Terrain + Maison proposés au prix de 239 000 € (Hors branchements et raccordements, papiers peints, peintures, revêtement de sol dans les chambres. Tarif modifiable sans préavis). Etiquette énergie : A. Différents modèles disponibles pour ce terrain. Assurances et garanties du constructeur (RC professionnelle, décennale, dommage ouvrage, garantie de remboursement de l'acompte, livraison à prix et délai convenu) : https://www.maisons-france-confort.fr/mentions-legales/. HEXAOM Services est enregistré auprès de l'ORIAS en tant que Courtier en financement, Niveau 1, sous le numéro 14001345.

Contactez l'agence de Mareuil-lès-Meaux

01 60 09 28 30

    * Champs obligatoires

    Vos informations sont traitées par HEXAOM et transmises à un conseiller commercial qui vous contactera afin de répondre à votre demande. Les plans et images présentés sur notre site sont la propriété d’HEXAOM et ne peuvent pas être reproduits sans son accord. Pour retrouver notre politique de protection des données personnelles et exercer vos droits conformément à la « loi informatique et liberté » cliquez-ici.