Maison neuve à
Cresserons (14440) Référence : KD2498168_2

Prix du projet : Maison avec Terrain

prix 325 900 €

  • 5 pièces
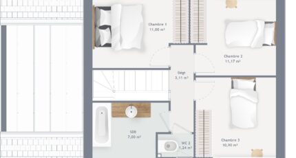
  • 3 chambres
  • Surface maison 90 m2

MAISON NEUVE À CONSTRUIRE DE 90 M², IDÉALEMENT SITUÉE À CRESSERONS

PRÉSENTATION DU BIEN
Située à Cresserons, cette maison à construire vous offre 90 m² habitables sur un terrain de 476 m². Elle se trouve dans un secteur résidentiel et proche de la Manche.

Cette maison à construire comprend trois chambres, une cuisine et une salle de bains avec baignoire pour répondre à vos besoins quotidiens.

La maison est répartie sur deux niveaux, ce qui offre un espace bien organisé et agréable à vivre.

Le terrain de 476 m² vous permet de réaliser un extérieur adapté à vos envies.

ENVIRONNEMENT

Cresserons est une commune calme, proche de la Manche à 4 km environ et de Caen situé à 11 km. Vous y trouverez des commerces à proximité immédiate pour faciliter vos achats. L'école primaire Jacques Prévert est accessible à pied. La nationale N814 se trouve à 10 km pour vos déplacements.

NOUS CONTACTER

Cette maison est proposée à la vente au prix de 325 900 euros, honoraires inclus.

Pour toute information complémentaire ou visite, contactez Kevin DUCHESNE de l'agence Maisons France Confort Caen au 06-88-19-70-17. Construisez et réalisez votre maison dans ce cadre idéal pour votre projet.

Mentions légales

Terrain proposé par un partenaire foncier selon disponibilités et autorisation de publicité au prix de 118 000 €. Hors droit d'enregistrement et frais de notaire. Terrain + Maison proposés au prix de 325 900 € (Hors branchements et raccordements, papiers peints, peintures, revêtement de sol dans les chambres. Tarif modifiable sans préavis). Etiquette énergie : A. Différents modèles disponibles pour ce terrain. Assurances et garanties du constructeur (RC professionnelle, décennale, dommage ouvrage, garantie de remboursement de l'acompte, livraison à prix et délai convenu) : https://www.maisons-france-confort.fr/mentions-legales/. HEXAOM Services est enregistré auprès de l'ORIAS en tant que Courtier en financement, Niveau 1, sous le numéro 14001345.

Contactez l'agence de Caen

02 31 86 12 21

    * Champs obligatoires

    Vos informations sont traitées par HEXAOM et transmises à un conseiller commercial qui vous contactera afin de répondre à votre demande. Les plans et images présentés sur notre site sont la propriété d’HEXAOM et ne peuvent pas être reproduits sans son accord. Pour retrouver notre politique de protection des données personnelles et exercer vos droits conformément à la « loi informatique et liberté » cliquez-ici.