Maison neuve à
Criel-sur-Mer (76910) Référence : DD_eu44_05-1_1

Prix du projet : Maison avec Terrain

prix 174 500 €

  • 3 pièces
  • 2 chambres
  • Surface maison 65 m2

VENTE : maison de 3 pièces (65 m²) à Criel-sur-Mer
MAISON 3 PIÈCES NEUVE 
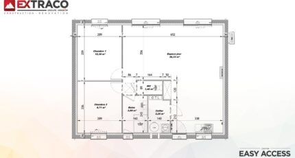
votre agence Les Maisons Extraco Eu est ravie de vous présenter à vendre à Criel-sur-Mer (76910), cette maison de 3 pièces de plain-pied de 65 m².
Son intérieur comporte deux chambres, une cuisine et une salle de bains. La maison est neuve.
Le terrain du bien s'étend sur 545 m².
L'École Primaire l'Ecol'Yères est implantée dans la commune. Côté transports en commun, il y a les gares Le Tréport-Mers-les-Bains et Eu à moins de 10 minutes en voiture. On trouve une bibliothèque, deux commerces, une boulangerie, un supermarché, deux boucheries-charcuteries et une épicerie à quelques minutes du logement.
Son prix de vente est de 174 500 €.
N'hésitez pas à prendre contact avec Delphine DERULLES (06-67-13-79-40) pour plus d'informations sur cette propriété, sur les démarches à suivre ou sur les modalités de vente.

Mentions légales

Terrain proposé par un partenaire foncier selon disponibilités et autorisation de publicité au prix de 60 000 €. Hors droit d'enregistrement et frais de notaire. Maison proposée, avec un contrat de construction de maison individuelle, dans le cadre de la loi du 19/12/1990, au prix de 114 500 € (Hors branchements et raccordements, papiers peints, peintures, revêtement de sol dans les chambres, qui sont chiffrés dans les travaux qui restent à charge du client. Tarif modifiable sans préavis). Étiquette énergie : A. Différents modèles disponibles pour ce terrain. Assurances et garanties du constructeur comprises (RC professionnelle, décennale, dommage ouvrage).