Maison neuve à
Crisenoy
(77390) Référence :
FS2456149_1
Prix du projet : Maison avec Terrain
prix 268 000 €
- 5 pièces
- 3 chambres
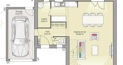
- Surface maison 90 m2
VENTE : maison de 5 pièces (90 m²) à Crisenoy
EMPLACEMENT PRIVILÉGIÉ - MAISON 5 PIÈCES NEUVE
À proximité de la gare de Verneuil-l'Étang (Paris à 30 min par le Transilien P), nous sommes ravis de vous proposer cette maison de 5 pièces de 90 m² bénéficiant d'un emplacement privilégié dans Crisenoy (77390).
Cette maison comporte 2 niveaux. Elle comporte trois chambres, une cuisine et une salle de bains. La maison est neuve.
Le terrain de la propriété est de 481 m².
Cette maison se situe dans un secteur convoité. On y trouve une école primaire. Niveau transports en commun, on trouve deux gares (Verneuil-l'Étang et Melun) à moins de 10 minutes en voiture. Il y a un tennis, une bibliothèque et une épicerie à quelques minutes de la maison.
Elle est proposée à l'achat pour 268 000 €.
Prenez contact avec notre agence (Félix SOUMARMON : 06-10-24-97-84) pour toute question sur la maison. Maisons France Confort Magny-le-Hongre vous accompagne dans tous vos projets immobiliers et dans toutes vos démarches.
Annonce proposée par un Agent Commercial Partenaire.
Mentions légales
Terrain proposé par un partenaire foncier selon disponibilités et autorisation de publicité au prix de 100 000 €. Hors droit d'enregistrement et frais de notaire. Terrain + Maison proposés au prix de 268 000 € (Hors branchements et raccordements, papiers peints, peintures, revêtement de sol dans les chambres. Tarif modifiable sans préavis). Etiquette énergie : A. Différents modèles disponibles pour ce terrain. Assurances et garanties du constructeur (RC professionnelle, décennale, dommage ouvrage, garantie de remboursement de l'acompte, livraison à prix et délai convenu) : https://www.maisons-france-confort.fr/mentions-legales/. HEXAOM Services est enregistré auprès de l'ORIAS en tant que Courtier en financement, Niveau 1, sous le numéro 14001345.Agence Maisons France Confort de Magny-le-Hongre (77700)
- Téléphone :
- 01 84 80 92 96
- Adressse :
- 11 rue de Courtalin
77700 Magny-le-Hongre, France
