Maison neuve à
Cruas
(07350) Référence :
FD2378169_3
Prix du projet : Maison avec Terrain
prix 200 987 €
- 4 pièces
- 3 chambres
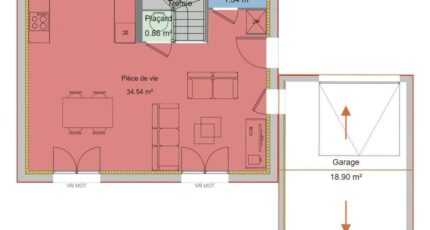
- Surface maison 73 m2
Cruas : maison de 4 pièces (73 m²) en vente
EMPLACEMENT PRIVILÉGIÉ - MAISON 4 PIÈCES NEUVE
À quelques kilomètres de Montélimar, ayez le coup de coeur pour en vente, bénéficiant d'un emplacement privilégié dans Cruas (07350), cette maison de 4 pièces de 73 m² et de 328 m² de terrain.
Il s'agit d'une maison de 2 niveaux. Son intérieur inclut trois chambres, une cuisine et une salle de bains. Cette maison est neuve.
La maison se situe dans un secteur attractif. On trouve des établissements scolaires primaires à moins de 10 minutes à pied et, parmi lesquels l'École Primaire Privée des Roches. L'autoroute A7 et la nationale N7 sont accessibles à moins de 4 km. Il y a une bibliothèque, deux boulangeries, deux commerces, une épicerie, une boucherie-charcuterie et une supérette à quelques minutes.
Elle est à vendre pour la somme de 204 987 €.
Contactez notre agence (DUBOIS florian : 06-23-16-33-11) pour tout renseignement sur la maison, sur les modalités de vente ou sur les démarches à suivre. Maisons France Confort Montélimar vous accompagne à toutes les étapes de votre projet et dans tous vos projets immobiliers.
Mentions légales
Terrain proposé par un partenaire foncier selon disponibilités et autorisation de publicité au prix de 60 900 €. Hors droit d'enregistrement et frais de notaire. Terrain + Maison proposés au prix de 200 987 € (Hors branchements et raccordements, papiers peints, peintures, revêtement de sol dans les chambres. Tarif modifiable sans préavis). Etiquette énergie : A. Différents modèles disponibles pour ce terrain. Assurances et garanties du constructeur (RC professionnelle, décennale, dommage ouvrage, garantie de remboursement de l'acompte, livraison à prix et délai convenu) : https://www.maisons-france-confort.fr/mentions-legales/. HEXAOM Services est enregistré auprès de l'ORIAS en tant que Courtier en financement, Niveau 1, sous le numéro 14001345.Agence Maisons France Confort de Montélimar (26200)
- Téléphone :
- 04 75 92 40 32
- Adressse :
- Bd du Président François Mitterrand
26200 Montélimar, France
