Maison neuve à
Cugnaux (31270) Référence : CE2486739_2

Prix du projet : Maison avec Terrain

prix 536 874 €

  • 5 pièces
  • 4 chambres
  • Surface maison 132 m2

Cugnaux : maison T5 (132 m²) en vente avec l'agence Maisons France Confort de Tournefeuille
QUARTIER RECHERCHÉ - MAISON 5 PIÈCES NEUVE
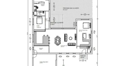
À vendre : nous vous présentons cette maison de 5 pièces de plain-pied de 132 m², construite dans un quartier attractif de Cugnaux (31270).
Conçue de plain-pied, elle se divise en quatre chambres, une cuisine et deux salles de bains. Cette maison est neuve.
Le terrain de la propriété est de 600 m².
La propriété se trouve dans un secteur recherché. Des écoles maternelles et élémentaires sont implantées à moins de 10 minutes à pied, tout comme deux structures d'accueil pour les tout-petits. Côté transports, il y a 13 gares à moins de 10 minutes en voiture. Quatre autoroutes et la nationale N124 sont accessibles à moins de 10 km. On trouve une bibliothèque, des commerces, quatre boucheries-charcuteries, un bureau de poste et une épicerie à proximité. Le marché Place de l'Europe a lieu chaque samedi matin.
Elle est proposée à l'achat pour 536 874 €.
Contactez notre agence Maisons France Confort de Tournefeuille pour plus d'informations sur la maison ou sur les modalités de vente. Maisons France Confort Tournefeuille vous accompagne dans tous vos projets immobiliers et à toutes les étapes de votre projet.

Annonce proposée par un Agent Commercial Partenaire.

Mentions légales

Terrain proposé par un partenaire foncier selon disponibilités et autorisation de publicité au prix de 200 000 €. Hors droit d'enregistrement et frais de notaire. Terrain + Maison proposés au prix de 536 874 € (Hors branchements et raccordements, papiers peints, peintures, revêtement de sol dans les chambres. Tarif modifiable sans préavis). Etiquette énergie : A. Différents modèles disponibles pour ce terrain. Assurances et garanties du constructeur (RC professionnelle, décennale, dommage ouvrage, garantie de remboursement de l'acompte, livraison à prix et délai convenu) : https://www.maisons-france-confort.fr/mentions-legales/. HEXAOM Services est enregistré auprès de l'ORIAS en tant que Courtier en financement, Niveau 1, sous le numéro 14001345.

Contactez l'agence de Tournefeuille

05 61 16 47 77

    * Champs obligatoires

    Vos informations sont traitées par HEXAOM et transmises à un conseiller commercial qui vous contactera afin de répondre à votre demande. Les plans et images présentés sur notre site sont la propriété d’HEXAOM et ne peuvent pas être reproduits sans son accord. Pour retrouver notre politique de protection des données personnelles et exercer vos droits conformément à la « loi informatique et liberté » cliquez-ici.