Maison neuve à
Cussy
(14400) Référence :
JS2322633_5
Prix du projet : Maison avec Terrain
prix 256 000 €
- 7 pièces
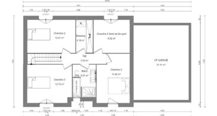
- 5 chambres
- Surface maison 120 m2
VENTE d'une maison F7 (120 m²) à Bayeux
IDÉALEMENT SITUÉE - MAISON 7 PIÈCES NEUVE
À vendre : localisée à 9 km de la Manche et à deux pas de Caen, venez découvrir, idéalement située dans Bayeux (14400), cette maison de 7 pièces de 120 m² et de 303 m² de terrain.
Il s'agit d'une maison de 2 niveaux. Elle propose cinq chambres, une cuisine et deux salles de bains. La maison est neuve.
La maison se situe dans un secteur attractif. On trouve des établissements scolaires de tous niveaux à moins de 10 minutes à pied, tout comme une crèche. Niveau transports, il y a la gare Bayeux dans un rayon de 1 km. On trouve un accès à la nationale N13 à 3 km. On trouve une bibliothèque, des commerces, des boulangeries, un supermarché, une supérette et un bureau de poste à proximité du logement. Enfin, 2 marchés animent les environs.
Son prix de vente est de 256 000 €.
Prenez contact avec notre agence (Emilie HUE : 06-29-81-46-66) pour tout renseignement sur la maison ou sur les modalités de vente. Maisons France Confort Bayeux est là pour vous accompagner dans toutes vos démarches.
Annonce proposée par un Agent Commercial Partenaire.
Mentions légales
Terrain proposé par un partenaire foncier selon disponibilités et autorisation de publicité au prix de 56 000 €. Hors droit d'enregistrement et frais de notaire. Maison proposée, avec un contrat de construction de maison individuelle, dans le cadre de la loi du 19/12/1990, au prix de 200 000 € (Hors branchements et raccordements, papiers peints, peintures, revêtement de sol dans les chambres, qui sont chiffrés dans les travaux qui restent à charge du client. Tarif modifiable sans préavis). Étiquette énergie : A. Différents modèles disponibles pour ce terrain. Assurances et garanties du constructeur comprises (RC professionnelle, décennale, dommage ouvrage).Agence Maisons France Confort de Bayeux (14400)
- Téléphone :
- 02 31 51 20 91
- Adressse :
- 2, rue Saint Loup
14400 Bayeux, France
