Maison neuve à
Dannemois
(91490) Référence :
AD2404824_2
Prix du projet : Maison avec Terrain
prix 310 400 €
- 5 pièces
- 3 chambres
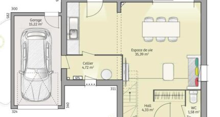
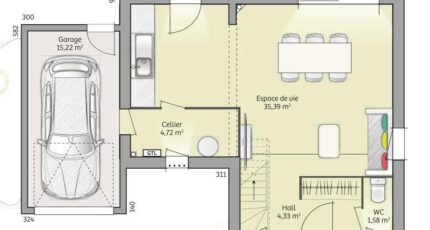
- Surface maison 90 m2
Dannemois : maison de 5 pièces (90 m²) en vente
QUARTIER RECHERCHÉ - MAISON 5 PIÈCES NEUVE
À deux pas d'Évry-Courcouronnes, ayez le coup de coeur pour cette maison de 5 pièces de 90 m² à vendre dans un quartier attractif de Dannemois (91490). Son intérieur inclut trois chambres, une cuisine et une salle de bains.
Le terrain du bien s'étend sur 405 m².
C'est une maison de 2 niveaux. Elle est neuve.
Cette maison se trouve dans un secteur convoité. Une école primaire y est implantée. Côté transports en commun, il y a la ligne de RER D (Boutigny-Sur-Essonne) ainsi que les gares Boutigny-sur-Essonne, Maisse et La Ferté-Alais à moins de 10 minutes en voiture. On trouve un tennis et un commerce à proximité de la maison.
Elle est à vendre pour la somme de 310 400 €.
Contactez notre agence (Anne DELOHEN : 06-30-93-26-67) pour toute information sur la maison ou sur les démarches à suivre.
Annonce proposée par un Agent Commercial Partenaire.
Mentions légales
Terrain proposé par un partenaire foncier selon disponibilités et autorisation de publicité au prix de 134 100 €. Hors droit d'enregistrement et frais de notaire. Terrain + Maison proposés au prix de 310 400 € (Hors branchements et raccordements, papiers peints, peintures, revêtement de sol dans les chambres. Tarif modifiable sans préavis). Etiquette énergie : A. Différents modèles disponibles pour ce terrain. Assurances et garanties du constructeur (RC professionnelle, décennale, dommage ouvrage, garantie de remboursement de l'acompte, livraison à prix et délai convenu) : https://www.maisons-france-confort.fr/mentions-legales/. HEXAOM Services est enregistré auprès de l'ORIAS en tant que Courtier en financement, Niveau 1, sous le numéro 14001345.Agence Maisons France Confort de Nemours (77140)
- Téléphone :
- 01 64 28 58 32
- Adressse :
- 16 Avenue Carnot
77140 Nemours, France
