Maison neuve à
Dax
(40100) Référence :
JT2463321_1
Prix du projet : Maison avec Terrain
prix 261 300 €
- 4 pièces
- 3 chambres
- Surface maison 85 m2
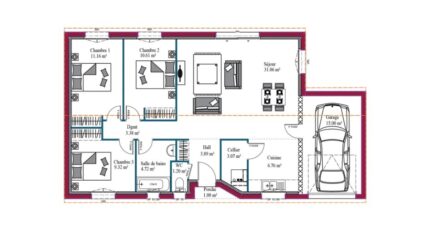
🏠✨ Le Modèle Optima: Une Vie de Rêve Vous Attend sur ce Terrain de 530m² ! ✨🌳 Jessyca THÉNEAU des maisons MCA vous dévoile une opportunité exceptionnelle à Dax.
🏡 Caractéristiques du Modèle Optima: Cette maison possède un grand salon-séjour tourné vers le jardin, une cuisine ouverte avec son cellier attenant, ce qui offre un espace jour de près de 38m2, le coté nuit est composé de 3 chambres avec placards, une salle de bains et wc séparés. Un garage communiquant de 15 m2 vient compléter ce bel ensemble.
🚗 Points Forts : Ce modèle saura vous plaire grâce à son agencement idéalement pensé pour votre confort de vie, et l'optimisation des espaces.
💰 Tout Inclus dans le Prix : Terrain, frais de notaire, frais annexes (raccordements, asl, bornage), et la maison prête à décorer. Aucune surprise, juste la réalisation de votre rêve.
📞 Contactez Jessyca THÉNEAU à l'agence MCA de Saint Paul Lès Dax, pour une étude gratuite et personnalisée, afin de concrétiser votre rêve de construction. 🏠🌈
#ModèleOptima #ProjetConstruction #MCAImmobilier #VieDeRêve
Mentions légales
Idée de réalisation en modèle prêt à décorer sur l'un de nos terrains partenaires, sous réserve de disponibilités. Voir détails en agence.Agence Maisons de la Côte Atlantique de Saint-Paul-lès-Dax (40990)
- Téléphone :
- 05 58 35 44 71
- Adressse :
- 34 avenue de la liberté
40990 Saint-Paul-lès-Dax, France
