Maison neuve à
Dieulivol (33580) Référence : AF2473204_1

Prix du projet : Maison avec Terrain

prix 305 000 €

  • 5 pièces
  • 4 chambres
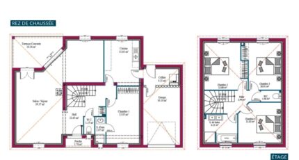
  • Surface maison 130 m2

VENTE : maison T5 (130 m²) à Dieulivol
IDÉALEMENT SITUÉE - MAISON 5 PIÈCES NEUVE
Nous sommes ravis de vous proposer à vendre, idéalement située dans Dieulivol (33580), cette maison de 5 pièces de 130 m².
Cette maison possède 2 niveaux. Son intérieur comporte quatre chambres, une cuisine et une salle de bains. La maison est neuve.
Le terrain de la propriété s'étend sur 1 770 m².
La maison se situe dans un quartier attractif. On y trouve une école maternelle.
Son prix de vente est de 305 000 €.

Mentions légales

Idée de réalisation en modèle prêt à décorer sur l'un de nos terrains partenaires, sous réserve de disponibilités. Voir détails en agence.

Contactez l'agence de Marmande

05 53 84 47 83

    * Champs obligatoires

    Vos informations sont traitées par HEXAOM et transmises à un conseiller commercial qui vous contactera afin de répondre à votre demande. Les plans et images présentés sur notre site sont la propriété d’HEXAOM et ne peuvent pas être reproduits sans son accord. Pour retrouver notre politique de protection des données personnelles et exercer vos droits conformément à la « loi informatique et liberté » cliquez-ici.