Maison neuve à
Dinan (22100) Référence : LA2491797_2

Prix du projet : Maison avec Terrain

prix 377 970 €

  • 6 pièces
  • 5 chambres
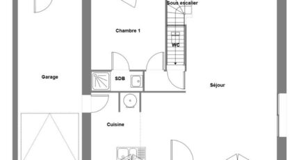
  • Surface maison 119 m2

Dinan : maison de 6 pièces (119 m²) en vente
EMPLACEMENT PRIVILÉGIÉ - MAISON 6 PIÈCES NEUVE
Dans l'un des secteurs les plus attractifs de Dinan, découvrez cette maison offrant une situation exceptionnelle, alliant accessibilité, visibilité et cadre de vie recherché.
Son emplacement stratégique, à quelques minutes du centre-ville et des commodités, en fait un bien particulièrement convoité.

En vente à 10 km de la Manche et à 21 km de Saint-Malo, notre agence Maisons de l'Avenir Saint-Carné est ravie de vous présenter cette maison de 6 pièces de 119 m² et de 297 m² de terrain bénéficiant d'un emplacement privilégié dans Dinan (22100).
Cette maison comporte 2 niveaux. Elle comporte cinq chambres, une cuisine et deux salles de bains. La maison est neuve.
Cette propriété se trouve dans un secteur prisé. Des établissements scolaires (de la maternelle au lycée) sont implantés à moins de 10 minutes à pied. Niveau transports, on trouve la gare Dinan dans un rayon de 1 km. Il y a un accès à la nationale N176 à 2 km. Il y a une bibliothèque, un port de plaisance, un tennis, des commerces, un bureau de poste, une poissonnerie, des boucheries-charcuteries et des épiceries à proximité du logement. Le marché Place Duguesclin a lieu tous les jeudis matin.
Elle est à vendre pour la somme de 377 970 €.
Prenez contact avec Laetitia AMIRI (tél : 02-99-83-07-20) pour tout renseignement sur la maison ou sur les démarches à suivre. Faites de vos projets immobiliers une réalité avec Maisons de l'Avenir Saint-Carné.

Mentions légales

Terrain proposé par un partenaire foncier selon disponibilités et autorisation de publicité au prix de 179 250 €. Hors droit d'enregistrement et frais de notaire. Terrain + Maison proposés au prix de 377 970 € (Hors branchements et raccordements, papiers peints, peintures, revêtement de sol dans les chambres. Tarif modifiable sans préavis). Etiquette énergie : A. Différents modèles disponibles pour ce terrain. Assurances et garanties du constructeur (RC professionnelle, décennale, dommage ouvrage, garantie de remboursement de l'acompte, livraison à prix et délai convenu) : https://www.maisonsdelavenir.com/mentions-legales/.

Contactez l'agence de Saint-Carné

02 99 83 07 20

    * Champs obligatoires

    Vos informations sont traitées par HEXAOM et transmises à un conseiller commercial qui vous contactera afin de répondre à votre demande. Les plans et images présentés sur notre site sont la propriété d’HEXAOM et ne peuvent pas être reproduits sans son accord. Pour retrouver notre politique de protection des données personnelles et exercer vos droits conformément à la « loi informatique et liberté » cliquez-ici.