Maison neuve à
Dol-de-Bretagne (35120) Référence : LA2491867_5

Prix du projet : Maison avec Terrain

prix 254 100 €

  • 4 pièces
  • 3 chambres
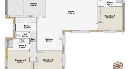
  • Surface maison 94 m2

Maison T4 (94 m²) à vendre à Dol-de-Bretagne
IDÉALEMENT SITUÉE - MAISON BIOCLIMATIQUE EN OSSATURE BOIS 4 PIÈCES NEUVE
Vous rêvez d'un habitat sain, chaleureux et respectueux de l'environnement ? Découvrez cette magnifique maison contemporaine en ossature bois, alliant design architectural et hautes performances énergétiques.

En vente : située à 8 km de la Manche et à deux pas de Saint-Malo, idéalement située dans Dol-de-Bretagne (35120), nous sommes ravis de vous présenter cette maison de 4 pièces de plain-pied de 94 m² et de 304 m² de terrain. Elle propose trois chambres, une cuisine et deux salles de bains.
Cette maison est neuve.
La maison se situe dans un secteur prisé. Tous les types d'écoles (de la maternelle au lycée) sont implantés à moins de 10 minutes à pied. Niveau transports, il y a la gare Dol-de-Bretagne à proximité. On trouve un accès à la nationale N176 à 1 km. On trouve un bassin de natation, des commerces, un bureau de poste, une poissonnerie, trois boucheries-charcuteries et deux épiceries dans les environs. Enfin, le marché Centre-Ville a lieu chaque samedi matin.
Elle est à vendre pour la somme de 254 100 €.
N'hésitez pas à prendre contact avec notre agence (AMIRI Laetitia : 02-99-83-07-20) pour tout renseignement sur la propriété, sur les démarches à suivre ou sur les modalités de vente. Maisons de l'Avenir Saint-Carné vous accompagne dans tous vos projets immobiliers et dans toutes vos démarches.

Mentions légales

Terrain proposé par un partenaire foncier selon disponibilités et autorisation de publicité au prix de 37 900 €. Hors droit d'enregistrement et frais de notaire. Terrain + Maison proposés au prix de 254 100 € (Hors branchements et raccordements, papiers peints, peintures, revêtement de sol dans les chambres. Tarif modifiable sans préavis). Etiquette énergie : A. Différents modèles disponibles pour ce terrain. Assurances et garanties du constructeur (RC professionnelle, décennale, dommage ouvrage, garantie de remboursement de l'acompte, livraison à prix et délai convenu) : https://www.maisonsdelavenir.com/mentions-legales/.

Contactez l'agence de Saint-Carné

02 99 83 07 20

    * Champs obligatoires

    Vos informations sont traitées par HEXAOM et transmises à un conseiller commercial qui vous contactera afin de répondre à votre demande. Les plans et images présentés sur notre site sont la propriété d’HEXAOM et ne peuvent pas être reproduits sans son accord. Pour retrouver notre politique de protection des données personnelles et exercer vos droits conformément à la « loi informatique et liberté » cliquez-ici.